home page > Annunci immobiliari in Italia > Veneto > Padova > Monselice > Negozi uffici capannoni in affitto > Scheda immobile

Negozi uffici capannoni in affitto a Monselice

COMPILA IL MODULO SOTTOSTANTE PER RICEVERE MAGGIORI INFORMAZIONI







Invia la richiesta ad altre agenzie
Accetto il trattamento dei miei dati



Agenzia immobiliare casapi? di attilio nin

Via trento e trieste 38
35043 Monselice (PD)

042972401    Riferimenti: Attilio Nin

Monselice
Prezzo: € 1.200
G
288



Descrizione:
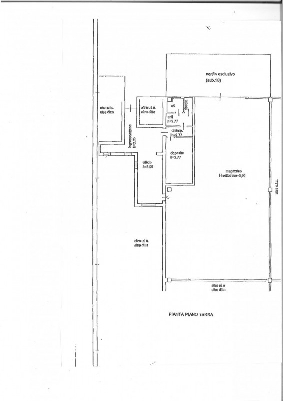
Affittasi capannone accostato situato nella zona industriale di monselice, con una superficie di 288 mq. E altezza del magazzino di 5,6 metri.l'immobile, di categoria catastale d/7, è formato da ampio magazzino, ufficio ristrutturato con zona ingresso/sala d'attesa, locale ad uso deposito, antibagno, bagno e locale doccia, mentre al primo piano del magazzino si trova un soppalco comodo per riporre ulteriore materiale. al canone è da aggiungere l'iva.l'immobile è dotato di accesso agevole, parte scoperta esclusiva e parcheggio per sei auto. questo capannone rappresenta un'ottima opportunità per chi cerca spazi funzionali. Prezzo trattabile.contattaci subito per organizzare una visita!




Caratteristiche immobile:
Codice inserzione: 1762401210
Rif. Annuncio: 157
Provincia: Padova
Comune: Monselice
Superficie (Mq) : 288 Mq.
Tipo immobile: Negozi uffici capannoni
Anno costruzione/ristrutturazione: 1983

Costi:
Prezzo € 1.200


Efficienza energetica:
Classe energetica: G
Indice di prestazione energetica (EPgl): 322.07 kWh/mc annui