home page > Annunci immobiliari in Italia > Veneto > Padova > Montegrotto Terme > Negozi uffici capannoni in vendita > Scheda immobile

Negozi uffici capannoni in vendita a Montegrotto Terme

COMPILA IL MODULO SOTTOSTANTE PER RICEVERE MAGGIORI INFORMAZIONI







Invia la richiesta ad altre agenzie
Accetto il trattamento dei miei dati



Visentin immobiliare

Via cernaia 64
35121 Padova

049.8714955    Riferimenti: Davide Visentin

Montegrotto Terme
Prezzo: € 140.000
F
1
1
70
Piano terra



Descrizione:
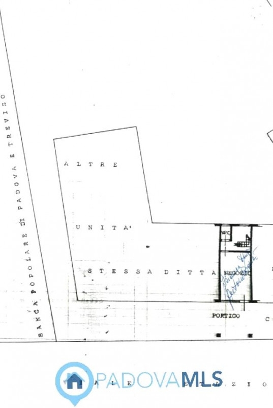
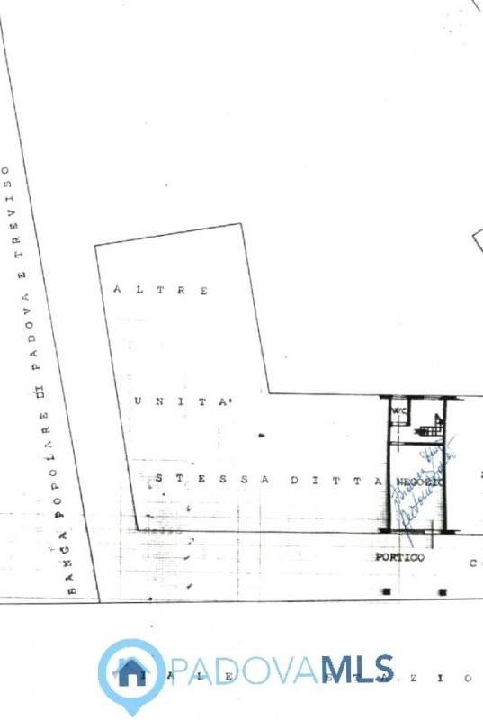
Immobile in esclusiva al gruppo padova mlsin posizione centralissima, di forte passaggio pedonale e veicolare, negozio al piano terra completamente ristrutturato con ampia vetrina, ripostiglio, bagno e ampio magazzino al piano interrato.l'immobile dispone di ampio portico antistante.la posizione è strategica anche per la disponibilità di ampio parcheggio di fronte al negozio.l'impianto elettrico è a norma, è presente l'impianto di illuminazione, aria condizionata, vetrine antisfondamento.ottima occasione anche per investimento!d. Perché vedo che la pubblicità di questo immobile è inserita anche da altre agenzie ?r. Semplice e trasparente: questo è un immobile provvisto di regolare incarico da parte del venditore conferito a una sola agenzia del gruppo padova mls, che grazie all'esclusivo metodo di collaborazione consente, a tutte le agenzie aderenti, di ampliare e potenziare la visibilità dello stesso. Tale attività è debitamente regolamentata tra l'agenzia detentrice del mandato da parte del venditore e le agenzie autorizzate a proporlo.d. Cosa cambia quindi per chi cerca casa?r. Grazie a questo servizio il cliente potrà ricercare senza limiti territoriali la casa desiderata con l'assistenza di un unico interlocutore, che potrà aiutarlo e consigliarlo nella scelta tra tutti gli immobili disponibili nella rete di agenzie che si avvalgono di questo sistema di lavoro, riducendo i tempi di una affannosa ricerca e di continua richiesta di informazioni, e il venditore vede amplificata la promozione del suo immobile.




Caratteristiche immobile:
Codice inserzione: 1756867824
Rif. Annuncio: 1846
Provincia: Padova
Comune: Montegrotto Terme
Superficie (Mq) : 70 Mq.
Tipo immobile: Negozi uffici capannoni
Stato immobile: usato
Anno costruzione/ristrutturazione: 1970
Piano: Piano terra
Camere: 1
Bagni: 1

Costi:
Prezzo € 140.000


Efficienza energetica:
Classe energetica: F
Indice di prestazione energetica (EPgl): 225.43 kWh/mc annui
Riscaldamento: autonomo