home page > Annunci immobiliari in Italia > Veneto > Padova > Pernumia > appartamenti in vendita > Scheda immobile

Appartamento in vendita a Pernumia

COMPILA IL MODULO SOTTOSTANTE PER RICEVERE MAGGIORI INFORMAZIONI







Invia la richiesta ad altre agenzie
Accetto il trattamento dei miei dati



Mito srls

Largo carpanedo 1
35043 Monselice (PD)

0429783970    Riferimenti: Mirco Toffanin

Pernumia
Prezzo: € 110.000
D
1
1
63
1



Descrizione:
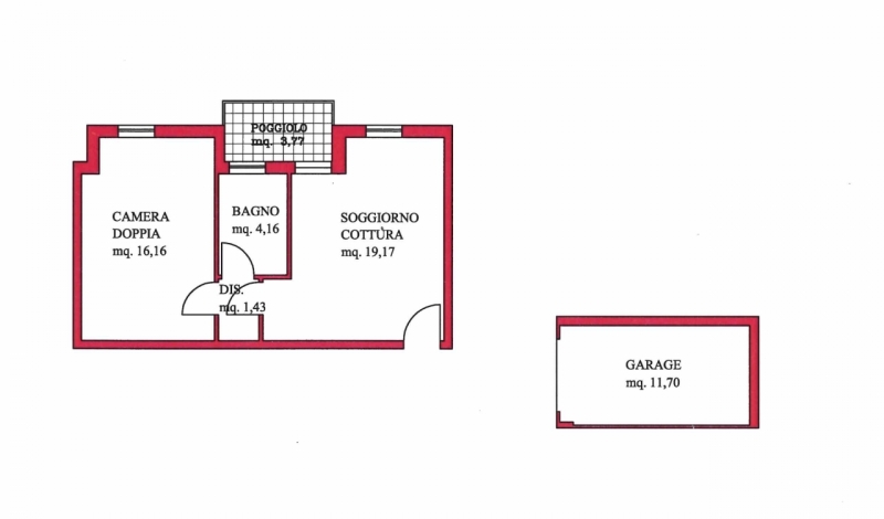
Pernumia: si propone appartamento arredato con garage. L'alloggio è ubicato in un contesto residenziale del 2007, si estende per una superficie di circa 50 mq, sviluppandosi al primo piano di un edificio dotato di ascensore. L'appartamento è composto da un soggiorno e cucina open space, molto luminoso e accogliente, con affaccio su un comodo terrazzo. A seguire, un bagno finestrato con doccia e la camera da letto matrimoniale. L'immobile viene venduto completamente arredato e, insieme al garage di circa 23 mq, può rappresentare il punto di appoggio ideale per coloro che scelgono di vivere in un paese collegato a tutte le principali vie di comunicazioni e servizi. In più, si tratta di una buona opportunità di investimento viste le numerose richieste di locazioni in zona.siamo abitiamo group: una rete di agenzie immobiliari in provincia di padova formata da professionisti altamente qualificati, che propone soluzioni personalizzate per la vendita, locazione, acquisto e investimento di immobili, ad albignasego, monselice e battaglia terme. Tre realtà un'unica casa!mettiamo il cliente e le sue esigenze immobiliari al centro, offrendo un servizio eccellente basato su 28 anni di esperienza e formazione nel settore. Forniamo un'esperienza di compravendita caratterizzata da professionalità, trasparenza e onestà, garantendo la massima cura e attenzione in ogni fase del processo.




Caratteristiche immobile:
Codice inserzione: 1767759739
Rif. Annuncio: 4402941
Provincia: Padova
Comune: Pernumia
Superficie (Mq) : 63 Mq.
Tipo immobile: Appartamento
Anno costruzione/ristrutturazione: 2007
Piano: 1
Camere: 1
Arredato:
Garage: Singolo
Bagni: 1

Costi:
Prezzo € 110.000


Efficienza energetica:
Classe energetica: D
Indice di prestazione energetica (EPgl): 20.12 kWh/mq annui
Riscaldamento: autonomo