home page > Annunci immobiliari in Italia > Veneto > Padova > Piove di Sacco > Attività commerciali in affitto > Scheda immobile

Attività commerciali in affitto a Piove di Sacco

COMPILA IL MODULO SOTTOSTANTE PER RICEVERE MAGGIORI INFORMAZIONI







Invia la richiesta ad altre agenzie
Accetto il trattamento dei miei dati



Piazzaffari di dal santo renato

Via f.lli sanguinazzi 1 c/o centro commerciale di piazzagrande
35028 Piove di Sacco (PD)

049.9701069    Riferimenti: Renato Dal Santo

Piove di Sacco
Prezzo: info in agenzia
300
Piano terra



Descrizione:
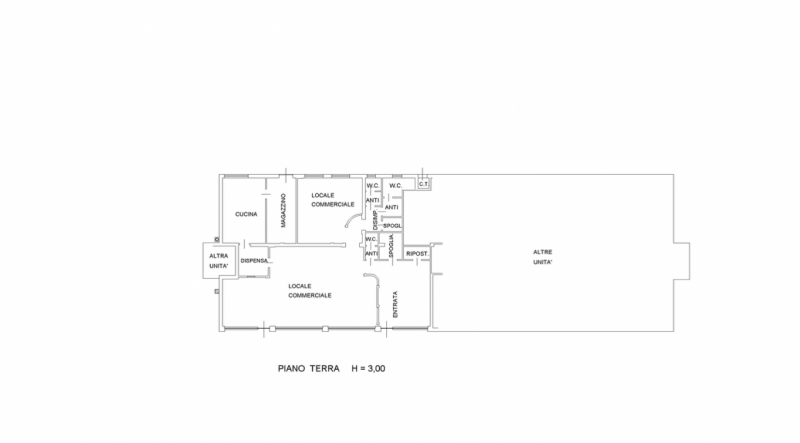
Pizzeria ristorante in affitto ampi spazi e ottima opportunitàproponiamo in affitto pizzeria ristorante con ampi spazi, ideale per attività già avviate o nuove gestioni nel settore della ristorazione.l'immobile si sviluppa su una superficie interna di 210 mq, ben distribuiti per accogliere sala clienti, zona bar e cucina. Completa la proprietà un'ampia area esterna coperta con tettoie per ulteriori 125 mq, perfetta per aumentare i coperti e sfruttabile in più stagioni.la soluzione si presta perfettamente per attività di ristorazione, pizzeria o locale serale, grazie alla versatilità degli spazi e alla possibilità di personalizzazione.disponibile a partire da agosto.trattativa riservata.per ulteriori informazioni contatta:-elisa ☎ agenzia immobiliare piazzaffari: o visita il nostro sito punti vendita a piove di sacco (pd)- via f.lli sanguinazzi, 1 - centro commerciale piazzagrande- via roma, 29 - centro storicoseguici anche su facebook https://




Caratteristiche immobile:
Codice inserzione: 1774323397
Rif. Annuncio: APDS138
Provincia: Padova
Comune: Piove di Sacco
Superficie (Mq) : 300 Mq.
Tipo immobile: Attività commerciali
Piano: Piano terra

Costi:
Prezzo info in agenzia


Efficienza energetica: