home page > Annunci immobiliari in Italia > Veneto > Padova > San Martino di Lupari > appartamenti in vendita > Scheda immobile

Appartamento in vendita a San Martino di Lupari

COMPILA IL MODULO SOTTOSTANTE PER RICEVERE MAGGIORI INFORMAZIONI







Invia la richiesta ad altre agenzie
Accetto il trattamento dei miei dati



Zanimmobiliare di adriana zani

Via francia 12
31033 Castelfranco Veneto (TV)

0423372421    Riferimenti: Adriana Zani

San Martino di Lupari
Prezzo: € 380.000
A4
3
2
166
98
1



Descrizione:
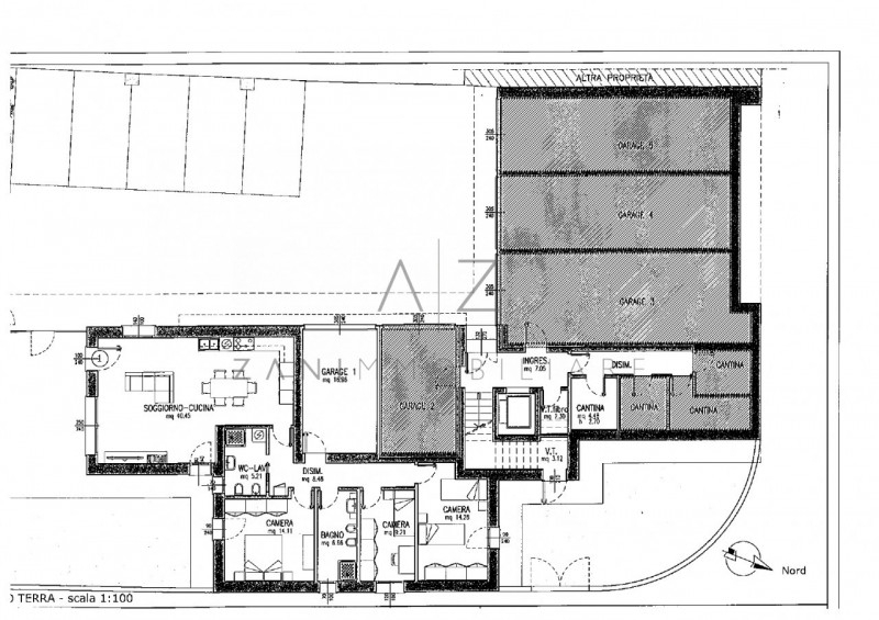
Proponiamo in vendita uno splendido appartamento quadrilocale situato al piano terra di un condominio di sole 5 unità, nel centro di san martino di lupari.l'immobile, che vanta una superficie complessiva di ben 166 mq, è composto da ampio soggiorno / cucina che si affaccia sul giardino privato, disimpegno dal quale si accede alla zona notte, bagno, lavanderia, due camere matrimoniali, un secondo bagno ed una cameretta.il garage doppio di proprietà è collegato direttamente all'abitazione e all'esterno troviamo un posto auto privato.al piano terra, inoltre, completa la proprietà una cantina.il quadrilocale dispone inoltre di riscaldamento a pavimento, raffrescamento a splitter già funzionante, impianto fotovoltaico da 4,5 kw, tapparelle motorizzate, ascensore, posto auto privato, garage motorizzati, possibilità di personalizzazione delle finiture.questo intervento ha la possibilità di usufruire del sismabonus (€48.000 in 10 anni).per maggiori info e visite contattare consulente germana:




Caratteristiche immobile:
Codice inserzione: 1758682161
Rif. Annuncio: NGV22-25
Provincia: Padova
Comune: San Martino di Lupari
Superficie (Mq) : 166 Mq.
Tipo immobile: Appartamento
Stato immobile: nuovo
Anno costruzione/ristrutturazione: 2025
Piano: Piano terra
Camere: 3
Garage: Singolo
Posti auto scoperti: 1 posto auto
Bagni: 2 + lavanderia

Costi:
Prezzo € 380.000


Efficienza energetica:
Classe energetica: A4
Riscaldamento: autonomo a pavimento