Descrizione:
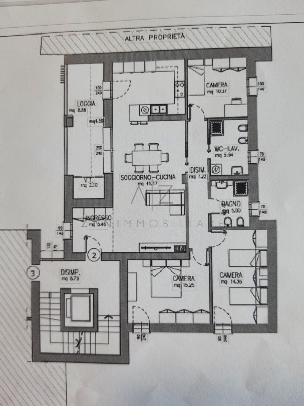
Proponiamo in vendita uno splendido appartamento quadrilocale situato al piano primo di un condominio di sole 5 unità, nel centro di san martino di lupari.l'immobile è composto da un soggiorno con angolo cottura (con la possibilità di avere una cucina separata), disimpego, due camere matrimoniali, una camera singola, due bagni di cui uno con lavanderia annesa, ed un terrazzo vivibile al quale si accede dal soggiorno. al piano terra completano la proprietà un garage doppio e una cantina.il quadrilocale dispone inoltre di riscaldamento a pavimento, raffrescamento a splitter già funzionante, impianto fotovoltaico da 4,5 kw, tapparelle motorizzate, ascensore, posto auto privato, garage motorizzati, possibilità di personalizzazione delle finiture.questo intervento ha la possibilità di usufruire del sismabonus (€48.000 in 10 anni).per maggiori informazioni consulente nicola: