home page > Annunci immobiliari in Italia > Veneto > Padova > Saonara > Case e ville indipendenti in vendita > Scheda immobile

Case e ville indipendenti in vendita a Saonara

COMPILA IL MODULO SOTTOSTANTE PER RICEVERE MAGGIORI INFORMAZIONI







Invia la richiesta ad altre agenzie
Accetto il trattamento dei miei dati



Veneto case srl

Via g. Marconi 84
35020 Ponte San Nicolò (PD)

0498961955

Saonara
Prezzo: € 520.000
A4
3
3
180
1
1



Descrizione:
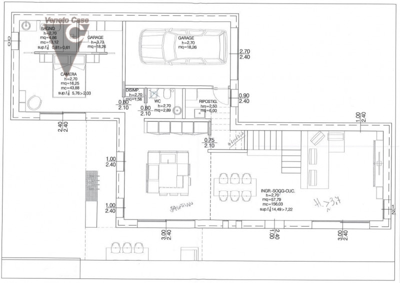
A casone di saonara, proponiamo moderna villa singola sviluppata su due piani di oltre 170 mq. L'abitazione si compone di una grande zona giorno open space di 60 mq, illuminata da ampie vetrate, 3 camere matrimoniali, 3 bagni, ripostiglio/lavanderia e garage. La villa disporrà di un generoso terrazzo affacciato sul giardino di proprietà. L'abitazione verrà terminata su misura per il cliente finale, con distribuzione degli spazi e finiture totalmente personalizzabili. Tecnologia costruttiva di altissimo livello.classe a4 - rif: csao520 - euro 520.000veneto case caminvia corsica, 1tel: vicinanze di noventa, padova, villatora, saonara, vigonovo, tombelle, strà, ponte san nicolò, legnaro, granze, ponte di brenta, riviera, arcella, guizza, forcellini, terranegra, voltabarozzo, camin, crocefisso, vigonza, peraga, busa, perarolo.




Caratteristiche immobile:
Codice inserzione: 1721946537
Rif. Annuncio: CSAO520
Provincia: Padova
Comune: Saonara
Superficie (Mq) : 180 Mq.
Tipo immobile: Case e ville indipendenti
Stato immobile: nuovo
Anno costruzione/ristrutturazione: 2025
Piano: 1
Camere: 3
Garage: Singolo
Posti auto scoperti: 1 posto auto
Bagni: 3 + lavanderia
Terrazze: 1

Costi:
Prezzo € 520.000


Efficienza energetica:
Classe energetica: A4
Indice di prestazione energetica (EPgl): 38.34 kWh/mq annui
Riscaldamento: autonomo a pavimento