home page > Annunci immobiliari in Italia > Veneto > Padova > Saonara > Case e ville indipendenti in vendita > Scheda immobile

Case e ville indipendenti in vendita a Saonara

COMPILA IL MODULO SOTTOSTANTE PER RICEVERE MAGGIORI INFORMAZIONI







Invia la richiesta ad altre agenzie
Accetto il trattamento dei miei dati



Veneto case srl

Via g. Marconi 84
35020 Ponte San Nicolò (PD)

0498961955

Saonara
Prezzo: € 545.000
A4
3
3
180
1
1



Descrizione:
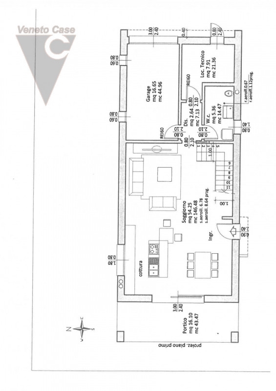
Proponiamo in vendita a villatora villa singola di prossima realizzazione in un contesto tranquillo e comodo a tutti i servizi del paese. La casa di circa 160 mq, disposta su due livelli, è composta da: zona giorno con cucina a vista di 54 mq (eventualmente separabile) che affaccia su portico di 16 mq, 3 camere (1 matrimoniale, 1 doppia, 1 singola), 3 bagni, camera guardaroba, 2 logge e garage da 16 mq; il tutto impreziosito da un giardino di 900 mq. L'immobile sarà dotato delle più attuali tecnologie costruttive, con possibilità di scelta delle finiture e ampia personalizzazione degli spazi interni.classe energetica a4 - rif cvig518 - euro 545.000veneto case caminvia corsica, 1tel: vicinanze di noventa, padova, villatora, saonara, vigonovo, tombelle, strà, ponte san nicolò, legnaro, granze, ponte di brenta, riviera, arcella, guizza, forcellini, terranegra, voltabarozzo, camin, crocefisso, vigonza, peraga, busa, perarolo.




Caratteristiche immobile:
Codice inserzione: 1721946538
Rif. Annuncio: CVIL518
Provincia: Padova
Comune: Saonara
Zona: Villatora  
Superficie (Mq) : 180 Mq.
Tipo immobile: Case e ville indipendenti
Stato immobile: nuovo
Anno costruzione/ristrutturazione: 2024
Piano: 1
Camere: 3
Garage: Singolo
Posti auto scoperti: 1 posto auto
Bagni: 3 + lavanderia
Terrazze: 2

Costi:
Prezzo € 545.000


Efficienza energetica:
Classe energetica: A4
Indice di prestazione energetica (EPgl): 36.74 kWh/mq annui
Riscaldamento: autonomo a pavimento