home page > Annunci immobiliari in Italia > Veneto > Padova > Selvazzano Dentro > appartamenti in vendita > Scheda immobile

Appartamento in vendita a Selvazzano Dentro

COMPILA IL MODULO SOTTOSTANTE PER RICEVERE MAGGIORI INFORMAZIONI







Invia la richiesta ad altre agenzie
Accetto il trattamento dei miei dati



My home selva s.r.l.

Via padova 12/e
35030 Selvazzano Dentro (PD)

0498686040    Riferimenti: MYHOMEGROUP Selvazzano

Selvazzano Dentro
Prezzo: € 300.000
A4
2
2
120
1
1



Descrizione:
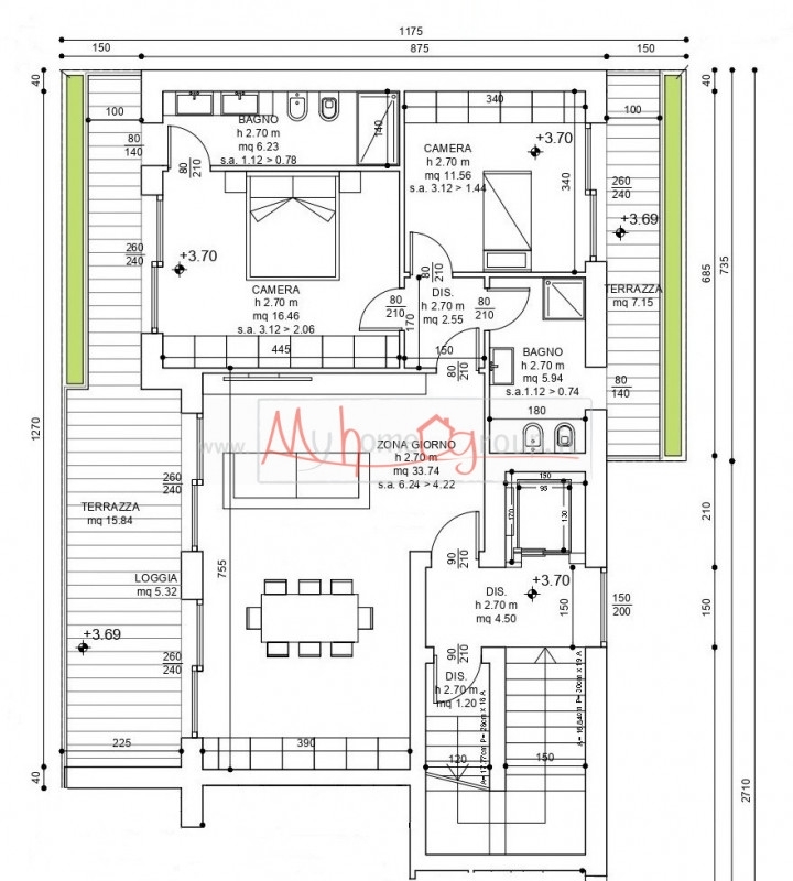
S.domenico - (rif.a6010-s) - scopri questo esclusivo appartamento situato nel cuore del quartiere san domenico, nel comune di selvazzano dentro. Questa unità immobiliare è parte di un fabbricato di 3 unità in fase di costruzione e si distingue per le sue caratteristiche uniche ed innovative.l'appartamento al primo piano, servito da ascensore, offre circa 100 mq di spazio abitabile senza spese condominiali. Salone con angolo cucina, che misura circa 35 mq, è illuminato da una grande vetrata che si apre su una terrazza abitabile di oltre 20 mq, perfettamente esposta a ovest.la zona notte comprende due camere: la camera matrimoniale padronale dispone di un bagno privato mentre la seconda camera doppia ha una superficie di circa 12 mq. Inoltre, troverai un ampio bagno finestrato che si affaccia su un'altra terrazza privata di circa 8 mq.completa l'abitazione un garage doppio situato al piano terra e un posto auto riservato all'interno della proprietà.le caratteristiche costruttive dell'immobile sono all'avanguardia; classificazione energetica a4 con impianto fotovoltaico autonomo da 4,5 kw garantisce elevate prestazioni energetiche e ridotti consumi. Gli acquirenti hanno anche la possibilità di personalizzare gli interni scegliendo tra diverse finiture disponibili in capitolato.situata in una zona tranquilla ma ben servita, questa proprietà non solo offre comfort e modernità ma anche accessibilità ai principali servizi come negozi, scuole e mezzi pubblici.chiamaci per avere ulteriori informazioni o per fissare un appuntamento: agenzia immobiliare myhomegroup - via padova 12/e, 35030 selvazzano dentro - pd - tel vendere per comprare? nessun problema, ci pensiamo noi!vuoi acquistare la tua nuova casa ma hai bisogno di vendere prima? my home group ti offre un servizio completo per la vendita del tuo immobile, aiutandoti a ottenere il massimo valore in tempi rapidi.valutazione gratuita e senza impegnoscopri quanto vale la tua casa!prenota subito una valutazione gratuita con i nostri esperti.https:// una valutazioneaffidati a noi per una gestione semplice e professionale della vendita del tuo immobile!l'agenzia myhomegroup di selvazzano dentro, copre le zone di tencarola, caselle, san domenico, feriole, abano terme, montegrotto, saccolongo, teolo, torreglia, cervarese santa croce, mestrino, rubano, padova.




Caratteristiche immobile:
Codice inserzione: 1767931251
Rif. Annuncio: A6010-S
Provincia: Padova
Comune: Selvazzano Dentro
Zona: San Domenico  
Superficie (Mq) : 120 Mq.
Tipo immobile: Appartamento
Stato immobile: nuovo
Anno costruzione/ristrutturazione: 2026
Piano: 1
Camere: 2
Garage: Doppio
Posti auto scoperti: 1 posto auto
Bagni: 2
Terrazze: 2

Costi:
Prezzo € 300.000


Efficienza energetica:
Classe energetica: A4
Indice di prestazione energetica (EPgl): 6 kWh/mq annui
Riscaldamento: autonomo a pavimento