home page > Annunci immobiliari in Italia > Veneto > Padova > Selvazzano Dentro > appartamenti in vendita > Scheda immobile

Appartamento in vendita a Selvazzano Dentro

COMPILA IL MODULO SOTTOSTANTE PER RICEVERE MAGGIORI INFORMAZIONI







Invia la richiesta ad altre agenzie
Accetto il trattamento dei miei dati



My home selva s.r.l.

Via padova 12/e
35030 Selvazzano Dentro (PD)

0498686040    Riferimenti: MYHOMEGROUP Selvazzano

Selvazzano Dentro
Prezzo: € 400.000
A4
3
2
170
1
1



Descrizione:
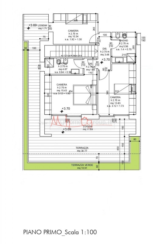
S.domenico - (rif.a6011-s) - opportunità unica nel quartiere, in costruzione appartamento disposto su 2 livelli con ingressi indipendenti. Fa parte di un contesto esclusivo composto da sole tre unità abitative. Questa soluzione abitativa nuova è perfetta per chi cerca spazi funzionali e vivibili immersi nella tranquillità del quartiere. L'appartamento si sviluppa su una superficie generosa di 170 mq e vanta un ingresso completamente autonomo. Al piano terra troverai una luminosa zona giorno open space di ben 50 mq, che si affaccia su un ampio giardino privato di ca. 150 mq.: il luogo ideale per godere della privacy e dell'aria aperta. Completano il piano un bagno finestrato e il garage doppio; salendo al primo piano, la zona notte offre tre camere spaziose: due matrimoniali ed una singola di oltre 10 mq, tutte dotate accesso ad uno straordinario terrazzo perimetrale abitabile che regala ulteriori momenti di relax all'aperto. Due bagni finestrati garantiscono comfort e praticità per tutta la famiglia.la proprietà include anche l'accesso diretto ad un garage doppio e a posto auto riservato; tutto ciò contribuisce alla massima autonomia degli spazi.classificata in classe energetica a/4, questa residenza assicura costi contenuti grazie alle moderne tecnologie integrate come riscaldamento a pavimento, predisposizione per impianto di raffrescamento estivo, ventilazione meccanica controllata (vmc) ed impianto fotovoltaico da 4,5 kw con predisposizione antintrusione.chiamaci per avere ulteriori informazioni o per fissare un appuntamento: agenzia immobiliare myhomegroup - via padova 12/e, 35030 selvazzano dentro - pd - tel vendere per comprare? nessun problema, ci pensiamo noi!vuoi acquistare la tua nuova casa ma hai bisogno di vendere prima? my home group ti offre un servizio completo per la vendita del tuo immobile, aiutandoti a ottenere il massimo valore in tempi rapidi.valutazione gratuita e senza impegnoscopri quanto vale la tua casa!prenota subito una valutazione gratuita con i nostri esperti.https:// una valutazioneaffidati a noi per una gestione semplice e professionale della vendita del tuo immobile!l'agenzia myhomegroup di selvazzano dentro, copre le zone di tencarola, caselle, san domenico, feriole, abano terme, montegrotto, saccolongo, teolo, torreglia, cervarese santa croce, mestrino, rubano, padova.




Caratteristiche immobile:
Codice inserzione: 1767931252
Rif. Annuncio: A6011-S
Provincia: Padova
Comune: Selvazzano Dentro
Zona: San Domenico  
Superficie (Mq) : 170 Mq.
Tipo immobile: Appartamento
Stato immobile: nuovo
Anno costruzione/ristrutturazione: 2026
Piano: 1
Camere: 3
Garage: Doppio
Posti auto scoperti: 1 posto auto
Bagni: 2
Terrazze: 2

Costi:
Prezzo € 400.000


Efficienza energetica:
Classe energetica: A4
Indice di prestazione energetica (EPgl): 6 kWh/mq annui
Riscaldamento: autonomo a pavimento