home page > Annunci immobiliari in Italia > Veneto > Padova > Selvazzano Dentro > Negozi uffici capannoni in vendita > Scheda immobile

Negozi uffici capannoni in vendita a Selvazzano Dentro

COMPILA IL MODULO SOTTOSTANTE PER RICEVERE MAGGIORI INFORMAZIONI







Invia la richiesta ad altre agenzie
Accetto il trattamento dei miei dati



Immobilpoint

Via euganea feriole 72
35037 Teolo (PD)

0499903066    Riferimenti: Agenzia Account

Selvazzano Dentro
Prezzo: € 365.000
F
3
2
655
Ultimo piano
1



Descrizione:
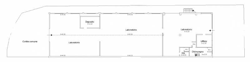
In zona centrale a selvazzano dentro proponiamo in vendita un capannone di circa 430 mq al piano terra con destinazione laboratorio, con un appartamento di 170 mq al primo piano. l'immobile si distingue per la sua versatilità grazie agli ampi spazi interni suddivisi tra laboratori (h=4,10 m e h=3,20 m), deposito (h=2,20 m) ed uffici funzionali (h=3,20 m), oltre a locali accessori come servizi igienici doppi con disimpegno dedicato.la presenza del cortile comune facilita l'accesso ai mezzi e il carico/scarico merci. al piano superiore l'appartamento è composto da soggiorno luminoso, cucina abitabile, tre camere da letto comode, bagno finestrato e doppio poggiolo. Al piano superiore una comoda soffitta di oltre 30 mq. soluzione ideale anche per chi desidera abbinare all'attività lavorativa una zona living privata oppure foresteria aziendale.l'assenza totale di spese condominiali rappresenta un ulteriore vantaggio economico. la posizione garantisce ottima visibilità commerciale nonché collegamenti rapidi verso le principali arterie stradali della zona padovana.questa proposta è perfetta sia per aziende in crescita che cercano nuovi spazi produttivi sia per investitori alla ricerca di immobili polifunzionali dal grande potenziale.contatta subito la nostra agenzia per ricevere ulteriori informazioni in ufficio. rif g047




Caratteristiche immobile:
Codice inserzione: 1772682361
Rif. Annuncio: G047
Provincia: Padova
Comune: Selvazzano Dentro
Superficie (Mq) : 655 Mq.
Tipo immobile: Negozi uffici capannoni
Stato immobile: usato
Anno costruzione/ristrutturazione: 1970
Piano: Ultimo piano
Camere: 3
Garage: Doppio
Posti auto scoperti: 1 posto auto
Bagni: 2

Costi:
Prezzo € 365.000


Efficienza energetica:
Classe energetica: F
Indice di prestazione energetica (EPgl): 98.59 kWh/mc annui
Riscaldamento: autonomo