home page > Annunci immobiliari in Italia > Veneto > Padova > Solesino > Case e ville indipendenti in vendita > Scheda immobile

Case e ville indipendenti in vendita a Solesino

COMPILA IL MODULO SOTTOSTANTE PER RICEVERE MAGGIORI INFORMAZIONI







Invia la richiesta ad altre agenzie
Accetto il trattamento dei miei dati



Immobiliare arcobaleno di candelli matteo

Via san girolamo 2b
35042 Este (PD)

04291760802    Riferimenti: Matteo Candelli

Solesino
Prezzo: € 79.000
G
4
2
245
1



Descrizione:
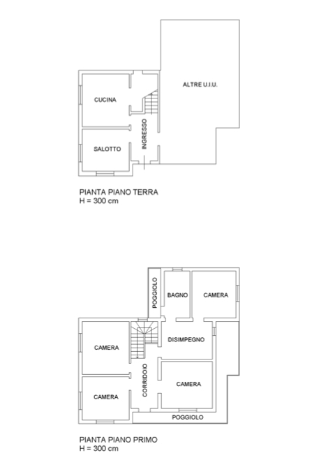
Ciao da arcobaleno consulenti immobiliari, fermati un attimo perché se stai cercando una soluzione singola comunicante negozio/magazzino, allora questa potrebbe fare al caso tuo!siamo a solesino, da sempre associato come il 'paese dei commercianti', infatti la vendita e il commercio sono sempre stati il motore trainante di questo vivo comune.gode di tutti i principali servizi, come le scuole di infanzia, primaria e secondaria, la posta, gli impianti sportivi e le banche, inoltre troveremo numerosi negozi di abbigliamento ed alimentari, bar, pasticcerie ed altre attività che rendono questo comune uno dei più piacevoli e vissuto dai propri cittadini!la tipologia che ora ti vado a descrivere è una casa singola, costruita negli anni '60 con un giardino/scoperto che gira attorno alla casa!l'abitazione si trova in zona residenziale in centro del paese e comoda a tutti i servizi.la casa si sviluppa su 2 piani visitandola sarai accolto da uno scoperto che anticipa l'ingresso entrando noterai di fronte a te una comoda stanza dove sulla tua sinistra troverai il salotto separato dal locale cucina. dall'ingresso avrai comunicazione al negozio di circa 30 mq utile che potrai adibire come meglio credi, potrai ricavarti un ampliamento della zona giorno o molto versatile se hai un'attività, laboratorio o officina.dal locale ingresso di fronte a te noterai invece le scale che portano al piano superiore , sarai accolto da 4 camere da letto matrimoniali, e dal bagno, infine potrai accedere ad un comodo poggiolo.esternamente l'abitazione dispone di un buon spazio verde, questo ti permetterà di far giocare serenamente i tuoi bambini, i tuoi animali si sentiranno liberi e ti potrai godere delle cene all'aria aperta!infine, la proprietà gode di un garage doppio, circa 35 mq, con annessa la zona lavanderia.ora non ti resta altro che contattarci per il tuo appuntamento dedicato e per visionare direttamente questa soluzione che potrebbe essere la tua nuova casa!contatti:luca: matteo: studio: 0429




Caratteristiche immobile:
Codice inserzione: 1757903905
Rif. Annuncio: 551
Provincia: Padova
Comune: Solesino
Superficie (Mq) : 245 Mq.
Tipo immobile: Case e ville indipendenti
Stato immobile: usato da riattare
Piano: 1
Camere: 4
Garage: Doppio
Bagni: 2

Costi:
Prezzo € 79.000


Efficienza energetica:
Classe energetica: G
Indice di prestazione energetica (EPgl): 375.7 kWh/mq annui
Riscaldamento: autonomo