Descrizione:
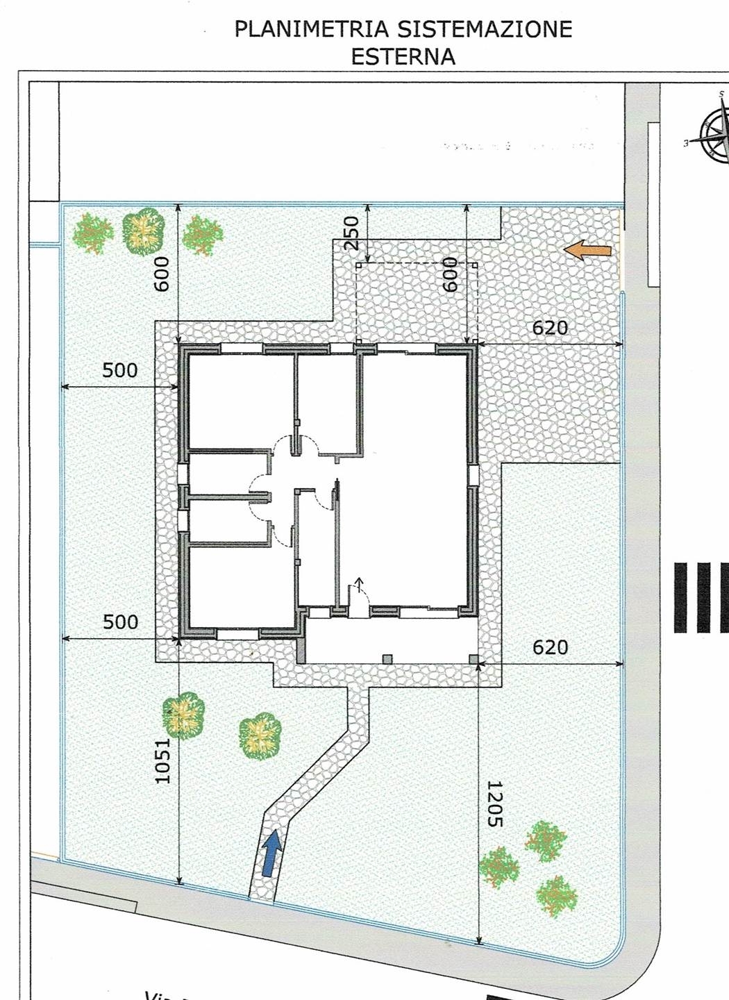
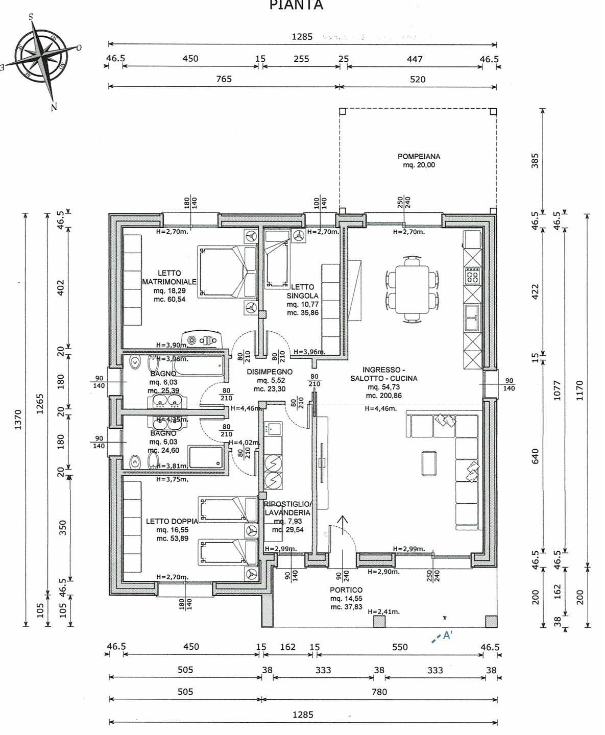
Vescovana, ma vicinissimo al centro di stanghella, in zona residenziale di completamento, proponiamo in vendita lotto di terreno edificabile di circa 773 mq, con progetto approvato per la realizzazione di una villetta singola moderna e funzionale.in vendita il terreno con progetto incluso, con possibilità di realizzazione della casa finita 'chiavi in mano', secondo le esigenze dell'acquirente se interessato.il progetto prevede una villa ad un unico piano di circa 190 mq, cosù composta:-ingresso su ampia zona giorno con cucina a vista-2 camere matrimoniali-1 camera singola-2 bagni-ripostiglio / lavanderia-portico-pompeiana, ideale per vivere al meglio lo spazio esternoprogetto completo e già approvato, comprensivo di:-calcoli strutturali in cemento armato-legge 10-concessione edilizia -oneri di urbanizzazione già pagatiquesta soluzione rappresenta un'ottima opportunità sia per chi desidera acquistare il lotto e costruire in autonomia, sia per chi cerca una casa nuova senza pensieri, con la possibilità di personalizzare finiture e dettagli.contesto tranquillo, residenziale e ben collegato.contattaci per maggiori informazioni, per visionare il progetto o per valutare la soluzione chiavi in mano.l'agenzia toninello immobiliare di este, presente da oltre 40 anni sul territorio estense, offre ai propri clienti professionalità ed esperienza accompagnandoli passo dopo passo nella conclusione della compravendita e nella locazione. Trasparenza e cordialità contraddistinguono il nostro operato, convinti soprattutto che un cliente soddisfatto valga più di mille pubblicità! a disposizione dei nostri clienti in agenzia un team di professionisti qualificati quali geometra, architetto, avvocato, commercialista e consulente finanziario per pratiche di mutuo. Siamo presenti a este, monselice, padova, carceri, sant'elena, villa estense, baone, cinto euganeo, vò', torreglia, teolo, arquà petrarca, galzignano terme, montegrotto terme, ospedaletto euganeo, borgo veneto, ponso, montagnana, noventa vicentina, rovigo, stanghella, solesino, sant'urbano, e paesi limitrofi. l'agenzia toninello immobiliare ha sede in via porta vecchia n.5 este (pd) recapiti: uff cell web: mail: classe energetica: non soggetto