home page > Annunci immobiliari in Italia > Veneto > Padova > Veggiano > Case e ville indipendenti in vendita > Scheda immobile

Case e ville indipendenti in vendita a Veggiano

COMPILA IL MODULO SOTTOSTANTE PER RICEVERE MAGGIORI INFORMAZIONI







Invia la richiesta ad altre agenzie
Accetto il trattamento dei miei dati



Home immobiliare

Piazza marconi 5
35030 Rovolon (PD)

3295989196    Riferimenti: Irene Tognon

Veggiano
Prezzo: € 280.000
E
2
2
143
Ultimo piano
1



Descrizione:
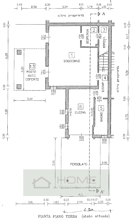
Scoprite questa splendida soluzione quadrifamiliare indipendente nella zona residenziale di trambacche, nel comune di veggiano. Immersa in un contesto tranquillo e verdeggiante, la proprietà si distingue per il suo magnifico giardino privato di circa 470 mq: uno spazio perfettamente piantumato e curato nei dettagli che regala privacy assoluta ed è ideale sia per momenti conviviali all'aperto dove trovano posto barbecue in muratura e un l'elegante gazebo sia per rilassarsi.costruita nel 1999 e mantenuta con la massima cura, l'immobile si sviluppa su tre piani fuori terra. Al piano terra troverete una luminosa zona giorno composta da un'accogliente cucina separata e un soggiorno dotato di caminetto, ideale per le serate in famiglia o con amici. Inoltre, sono presenti una pratica lavanderia, un ripostiglio/dispensa ed un bagno completo con doccia. Dal soggiorno si accede ad un porticato che offre la possibilità di godere del giardino.salendo al primo piano, troverete due camere da letto: una matrimoniale e una doppia ben illuminata; completano il piano anche un secondo bagno. Il secondo ed ultimo piano vanta un sottotetto versatile che può essere utilizzato come area hobby o relax oppure trasformato in ulteriori spazi abitativi.la casa viene proposta parzialmente arredata con possibilità di accordo sui mobili presenti direttamente con i proprietari; tutte le utenze sono autonome, l'immobile è disponibile da subito e senza alcuna spesa condominiale. Completa la proprietà un comodo posto auto coperto direttamente collegato all'ingresso interno.veggiano è strategicamente posizionata tra padova e vicenza: servizi essenziali raggiungibili rapidamente cosù come scuole primarie/secondarie, supermercati e piste ciclabili immersi nel verde dei colli euganei. La tranquillità del quartiere rende questo immobile perfetto per famiglie o chi desidera vivere lontano dal caos cittadino ma vicino a ogni comfort quotidiano.non lasciarti sfuggire questa rara opportunità! contattateci oggi stesso presso la nostra agenzia per organizzare una visita.il posizionamento sulla mappa è indicativo, tutti i dati e le informazioni contenute e indicate nel presente annuncio non costituiscono elemento contrattuale.




Caratteristiche immobile:
Codice inserzione: 1761710222
Rif. Annuncio: 4651070
Provincia: Padova
Comune: Veggiano
Zona: Trambacche  
Superficie (Mq) : 143 Mq.
Tipo immobile: Case e ville indipendenti
Stato immobile: usato
Anno costruzione/ristrutturazione: 1999
Piano: Ultimo piano
Camere: 2
Arredato:
Posti auto scoperti: 1 posto auto
Bagni: 2 + lavanderia

Costi:
Prezzo € 280.000


Efficienza energetica:
Classe energetica: E
Indice di prestazione energetica (EPgl): 190.68 kWh/mq annui
Riscaldamento: autonomo