Descrizione:
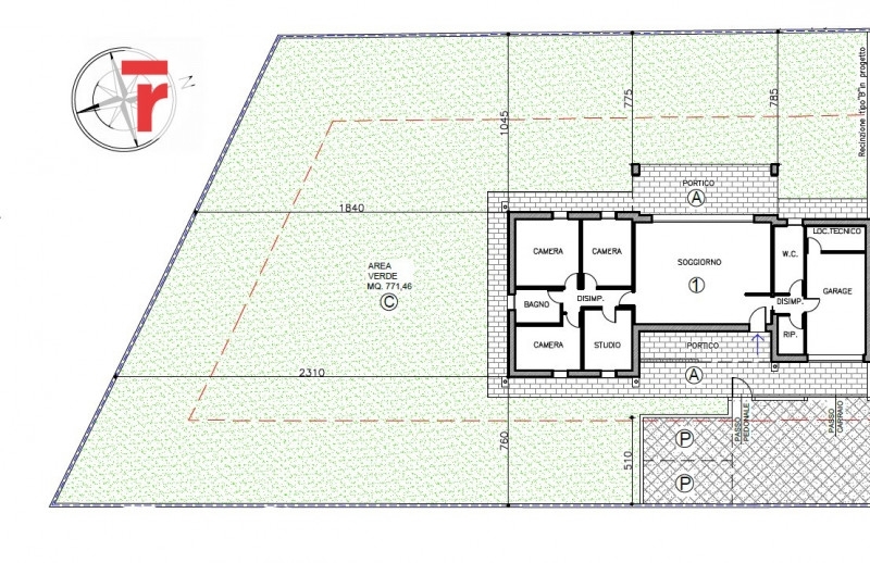
Vigodarzere centro - sito in una zona molto richiesta dai nostri clienti poiché unisce la tranquillità di una zona verde e poco trafficata alla comodità di avere supermercati, scuole, mezzi pubblici ed altri servizi a pochi minuti da casa.proponiamo porzione di bifamiliare in classe a4 dalle caratteristiche uniche, quasi impossibili da trovare al giorno d'oggi: si svilupperà interamente al piano terra e sarà dotata di ampio giardino (dai 500 ai 770 metri quadri) e composte da: - soggiorno con angolo cottura di 48 metri quadri - 3 camere da letto - 1 studio - 2 bagni finestrati - ripostiglio - garage di oltre 20 metri quadril'immobile sarà costruito utilizzando le più recenti tecnologie per garantire comfort, sicurezza, efficienza energetica e privacy, ideale per famiglie che cercano spazi ampi, connessione con la natura e un luogo sicuro dove vivere le proprie passioni assieme ai propri cari.il progetto mostrato in questo annuncio è già in fase avanzata di approvazione ma è ancora possibile apportare personalizzazioni agli spazi per adattarli al meglio alle proprie esigenze.planimetrie, progetti e maggiori dettagli disponibili in agenzia.le immagini ed i render presenti in annuncio sono indicativi, seppur fedeli al progetto realizzato.chiamaci per fissare un appuntamento!#lasoluzionegiustaperteper informazioni o visita sul posto potete contattarci: tel: mail: : via antonio gramsci, 10 a cadoneghe (pd)il nostro sito per altre offerte il presente annuncio ha valore puramente indicativo e non costituisce elemento, vincolo o presupposto contrattuale. Tutte le misure eventualmente riportate devono considerarsi indicative.- n.b. Per motivi di privacy, l'indirizzo e il puntatore nella mappa sono puramente indicativi e non corrispondono esattamente all'ubicazione dell'immobile.se ti piace questo immobile e/o conosci qualcuno che cerca un immobile simile a questo? condividi il post! su facebook!per info e visite chiamare