home page > Annunci immobiliari in Italia > Veneto > Padova > Vigonza > appartamenti in vendita > Scheda immobile

Appartamento in vendita a Vigonza

COMPILA IL MODULO SOTTOSTANTE PER RICEVERE MAGGIORI INFORMAZIONI







Invia la richiesta ad altre agenzie
Accetto il trattamento dei miei dati



Consulta domu srl

Via vittorio emanuele orlando 09
35121 Padova

3792130851    Riferimenti: Emanuele Zampieri

Vigonza
Prezzo: € 129.000
G
2
1
79
1
1



Descrizione:
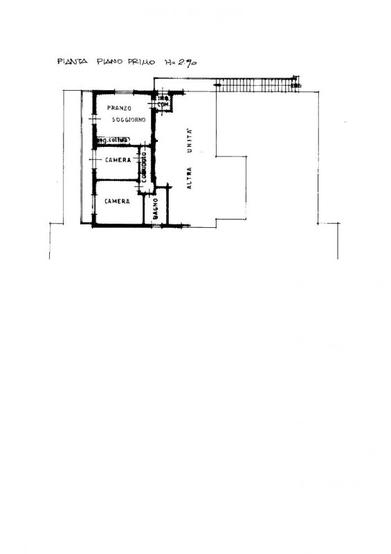
Se stai cercando un appartamento accogliente e ben posizionato, non perdere l'opportunità di scoprire questo splendido trilocale situato nel cuore della zona pionca di vigonza. Con una superficie di 79 mq, questa proprietà è perfetta per famiglie o giovani professionisti che desiderano vivere in un ambiente tranquillo ma vicino ai principali servizi.l'appartamento si presenta con ampi spazi luminosi data l'esposizione. La disposizione degli ambienti include un soggiorno open space che si fonde armoniosamente con la cucina, creando uno spazio ideale per momenti conviviali e relax. Le due camere da letto sono spaziose e arredabili secondo il proprio gusto personale, completano la proprietà un bagno finestrato. la posizione strategica dell'immobile consente di raggiungere facilmente le scuole, i supermercati e le fermate dei mezzi pubblici. Inoltre, vigonza offre numerosi parchi e aree verdi dove poter passeggiare o praticare sport all'aria aperta.non lasciarti sfuggire questa opportunità unica! contatta subito la nostra agenzia per organizzare una visita o ricevere ulteriori informazioni su questo affascinante appartamento trilocale a vigonza.




Caratteristiche immobile:
Codice inserzione: 1771213917
Rif. Annuncio: 201-SB
Provincia: Padova
Comune: Vigonza
Zona: Pionca  
Superficie (Mq) : 79 Mq.
Tipo immobile: Appartamento
Stato immobile: usato
Anno costruzione/ristrutturazione: 1990
Piano: 1
Camere: 2
Arredato:
Posti auto scoperti: 1 posto auto
Bagni: 1
Terrazze: 1

Costi:
Prezzo € 129.000


Efficienza energetica:
Classe energetica: G
Riscaldamento: autonomo