home page > Annunci immobiliari in Italia > Veneto > Padova > Villa Estense > Case e ville indipendenti in vendita > Scheda immobile

Case e ville indipendenti in vendita a Villa Estense

COMPILA IL MODULO SOTTOSTANTE PER RICEVERE MAGGIORI INFORMAZIONI







Invia la richiesta ad altre agenzie
Accetto il trattamento dei miei dati



Obiettivo casa

Piazza beata beatrice 7
35042 Este (PD)

042951983    Riferimenti: Gianmaria Mazzetto

Villa Estense
Prezzo: € 215.000
A3
2
2
155
1
1



Descrizione:
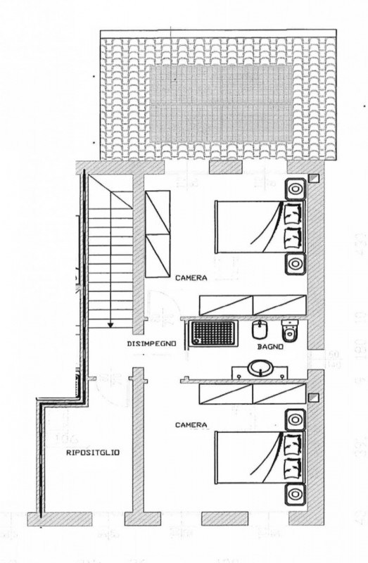
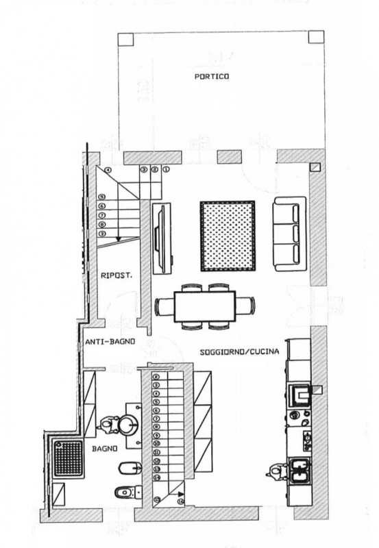
In una posizione comodissima al centro, proponiamo in vendita moderna porzione di bifamiliare di nuova costruzione.l'abitazione, sita un bel contesto residenziale chiuso al traffico, presenta l'ingresso nel soggiorno con cucina, allo stesso livello troviamo bagno e ripostiglio.dalla zona giorno si accede al porticato sul retro che affaccia sul giardino, ideale per chi ama godere di piacevoli momenti di relax o cenare all'aperto. Il piano superiore è composto da due camere da letto matrimoniali, un bagno e un ripostiglio/studio.al piano interrato troviamo tre comodi ripostigli. Giardino e cortile coprono la casa sui tre lati.l'immobile sarà caratterizzato da ottime finiture e alto livello di comfort abitativo.il prezzo s'intende 'chiavi in mano'.per informazioni contattare l'agenzia obiettivo casa di este via padana inferiore n. 2 al numero oppure a




Caratteristiche immobile:
Codice inserzione: 1761536670
Rif. Annuncio: BIF 470
Provincia: Padova
Comune: Villa Estense
Superficie (Mq) : 155 Mq.
Tipo immobile: Case e ville indipendenti
Stato immobile: nuovo
Anno costruzione/ristrutturazione: 2024
Piano: 1
Camere: 2
Posti auto scoperti: 1 posto auto
Bagni: 2

Costi:
Prezzo € 215.000


Efficienza energetica:
Classe energetica: A3
Riscaldamento: autonomo