Descrizione:
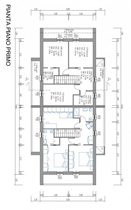
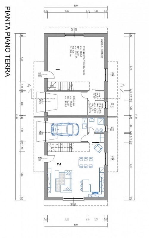
Villafranca padovana loc. Taggù di sotto (pd) in posizione centrale e servita, proponiamo in vendita una porzione indipendente di villa bifamiliare di prossima realizzazione, progettata con particolare attenzione al comfort abitativo e al risparmio energetico.l'abitazione è dotata di ingresso autonomo e di un ampio giardino esclusivo di circa 300 mq, che circonda l'immobile su tre lati, garantendo privacy e vivibilità degli spazi esterni.piano terra: zona giorno un luminoso ambiente open space di 50 mq accoglie il soggiorno e la cucina, con uscita diretta sul verde privato. Completano il livello il garage collegato internamente, un bagno/lavanderia finestrato e un comodo vano ripostiglio.piano primo: zona nottela camera padronale è servita da bagno finestrato privato e da una cabina armadio dedicata. Due ulteriori camere dalle generose dimensioni, un secondo bagno finestrato, tre terrazzi e un pratico spazio aggiuntivo sul vano scala, ideale come armadio a muro, completano il reparto notte.dotazioni e comfort:serramenti in pvc con triplo vetro a basso emissivoriscaldamento a pavimentotapparelle in alluminio elettricheimpianto con pompa di calore abbinato a pannelli fotovoltaicisistema di ventilazione meccanica controllatacapitolato di alta qualità con possibilità di scelta delle finitureclasse energetica: a4richiesta economica: porzione '1' € 360.000 porzione '2' € 380.000 consegna prevista fine 2026 nessun onere condominiale.servizi nei dintorni:farmacia 200 mt.bar 250 mt.supermercati 70 mtfermata autobus 250 mt.scuola primaria 800 mt.parrocchia 350 mt.padova stazione 10 kmper maggiori informazioni, piantine e visite agenzia immobiliare i.v.s. Taggù di sopra - villafranca padovana, tel (rif.tt220)'per motivi di riservatezza, la mappa non mostra l'esatta posizione dell'immobile, ma un indirizzo corrispondente a un punto situato nelle sue vicinanze.'