home page > Annunci immobiliari in Italia > Veneto > Padova > Villafranca Padovana > Negozi uffici capannoni in affitto > Scheda immobile

Negozi uffici capannoni in affitto a Villafranca Padovana

COMPILA IL MODULO SOTTOSTANTE PER RICEVERE MAGGIORI INFORMAZIONI







Invia la richiesta ad altre agenzie
Accetto il trattamento dei miei dati



Immobiliare orchidea s.r.l.

Via iv novembre 75
35035 Mestrino (PD)

0499001732    Riferimenti: Antonio Lovison

Villafranca Padovana
Prezzo: € 1.800
G
3
400
Piano terra



Descrizione:
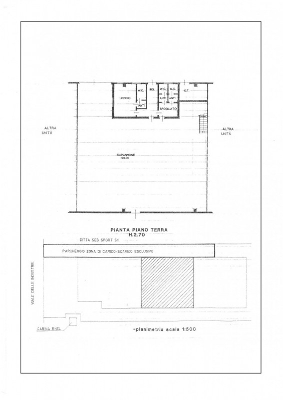
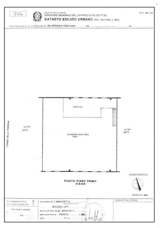
In una posizione strategica all'interno della zona industriale di ronchi di campanile (villafranca padovana), proponiamo in affitto un capannone artigianale-industriale di c.a. 400 mq con 330 mq superfice scoperta, perfetto per chi cerca uno spazio funzionale, indipendente e pronto all'uso.l'immobile, completamente autonomo, è la soluzione ideale per aziende, laboratori o realtà produttive che vogliono ottimizzare i propri spazi e migliorare la logistica. L'accesso è privato, con un'ampia area di manovra esclusiva e parcheggio riservato, elementi sempre più rari in zona e fondamentali per garantire efficienza nelle operazioni quotidiane.all'interno, il capannone si presenta con una grande area operativa open space di circa 320 mq, con altezza interna di 6 metri e un comodo portone carraio di 4 metri, adatto anche per mezzi di grandi dimensioni.il corpo uffici, già suddiviso in più vani per un totale di circa 60 mq, è completo di servizi igienici dedicati, spogliatoi per il personale e un soppalco funzionale perfetto come archivio o magazzino leggero di circa 60 mq.l'immobile è in ottimo stato manutentivo e pronto per accogliere da subito la tua attività, senza necessità di interventi. Pur essendo parte di un complesso, la posizione centrale con accesso indipendente garantisce la massima autonomia gestionale, senza interferenze o vincoli condominiali.spazi cosù ben organizzati, indipendenti e accessibili, in questa zona, sono sempre più difficili da trovare. Si tratta di una soluzione rara, pensata per rispondere alle esigenze di chi lavora con serietà e ha bisogno di un ambiente operativo solido, efficiente e versatile.immobile nelle vicinanze di: limena, rubano, mestrino, curtarolo, autostrada a4 (uscita padova ovest), tangenziale ovest di padova, zona industriale di padova.




Caratteristiche immobile:
Codice inserzione: 1760928339
Rif. Annuncio: C209
Provincia: Padova
Comune: Villafranca Padovana
Zona: Taggi di Sopra e Ronchi di Campanile  
Superficie (Mq) : 400 Mq.
Tipo immobile: Negozi uffici capannoni
Stato immobile: usato
Piano: Piano terra
Bagni: 3

Costi:
Prezzo € 1.800


Efficienza energetica:
Classe energetica: G
Indice di prestazione energetica (EPgl): 152.45 kWh/mc annui
Riscaldamento: autonomo