Descrizione:
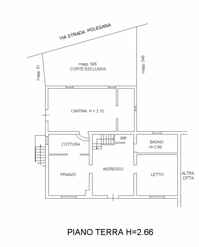
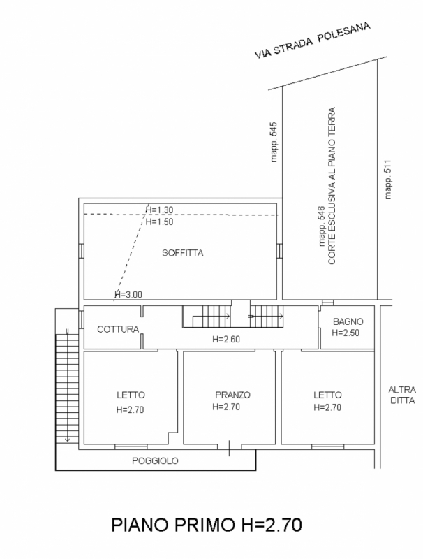
Studio casa vi propone in vendita edificio bifamiliare su lotto di 650 mq con ampio cortile in posizione comodissima alla viabilità principale ma anche per raggiungere rapidamente il centro di lendinara. la casa è accostata, ad est, ad altra abitazione. Purtroppo è rimasta disabitata per lungo tempo e necessita di ristrutturazione per ritornare fruibile. Attualmente è suddivisa in due appartamenti di circa 75 mq/ciascuno ma può essere convertita ad unica abitazione, ricavando spazi generosi per tutta la famiglia. l'ampio cortile esterno dà la possibilità di godere della campagna circostante e della vita all'aperto, offrendo spazi comodi per serate conviviali con gli amici e grande libertà ad animali di affezione. non lasciarti scappare questa grandiosa opportunità ad un prezzo davvero impressionante e trattabile!vieni in agenzia per avere maggiori info!