Descrizione:
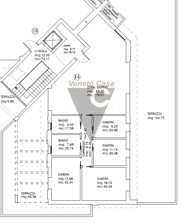
Camponogara - attico all'ultimo piano su nuova costruzioneproponiamo in vendita un magnifico attico dalle generose dimensionila superficie abitabile si estende su circa 350 mq, l'attico è composto da un ampio open-space soggiorno-cucina che supera i 60 mq, la zona notte comprende 4 camere di cui 2 matrimoniali e 2 bagni.all'esterno, questo attico vanta due terrazzi privati di 205 mq complessivi; lo spazio ideale dove godere pranzi all'aperto durante le belle giornate o semplicemente rilassarsi ammirando i tramonti in totale privacy.classe energetica a4 - rif 318-fcal - euro 420.000veneto case fosso'via roma, 1tel: vicinanze di fossò fiesso dolo strà barbariga vigonza sandon camponogara noventa noventana riviera del brenta liettoli piove campolongo cazzago pianiga campagna lupia bojon