home page > Annunci immobiliari in Italia > Veneto > Venezia > Chioggia > appartamenti in vendita > Scheda immobile

Appartamento in vendita a Chioggia

COMPILA IL MODULO SOTTOSTANTE PER RICEVERE MAGGIORI INFORMAZIONI







Invia la richiesta ad altre agenzie
Accetto il trattamento dei miei dati



Officina abitare s.a.s

Lungomare adriatico 61
30015 Chioggia (VE)

0414965797    Riferimenti: Luca Nordio

Chioggia
Prezzo: € 158.000
2
1
70
5



Descrizione:
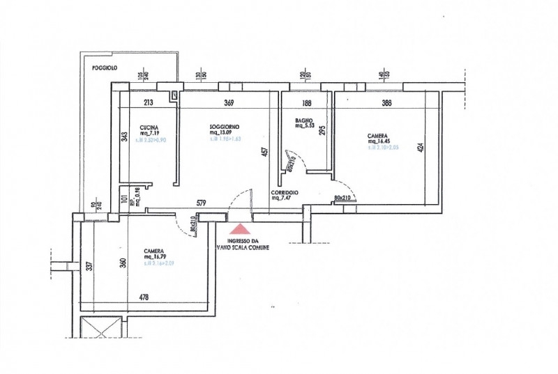
Nel ricercato quartiere di borgo san giovanni proponiamo in vendita un appartamento al piano alto e servito da ascensore. Questa soluzione immobiliare è stata ristrutturata nel 2023 ed è dotata di riscaldamento autonomo, condizionatore e serramenti in pvc con vetrocamera. Al suo interno si compone di ingresso, soggiorno diviso dalla cucina, due ampie camere da letto matrimoniali, corridoio e bagno finestrato. Completa la proprietà la pratica soffitta. Appartamento ideale per giovani famiglie!!!




Caratteristiche immobile:
Codice inserzione: 1756868054
Rif. Annuncio: 802
Provincia: Venezia
Comune: Chioggia
Superficie (Mq) : 70 Mq.
Tipo immobile: Appartamento
Stato immobile: ristrutturato
Piano: 5
Camere: 2
Arredato:
Bagni: 1
Terrazze: 1

Costi:
Prezzo € 158.000


Efficienza energetica:
Riscaldamento: autonomo