home page > Annunci immobiliari in Italia > Veneto > Venezia > Chioggia > appartamenti in vendita > Scheda immobile

Appartamento in vendita a Chioggia

COMPILA IL MODULO SOTTOSTANTE PER RICEVERE MAGGIORI INFORMAZIONI







Invia la richiesta ad altre agenzie
Accetto il trattamento dei miei dati



Officina abitare s.a.s

Lungomare adriatico 61
30015 Chioggia (VE)

0414965797    Riferimenti: Luca Nordio

Chioggia
Prezzo: € 175.000
E
2
1
55



Descrizione:
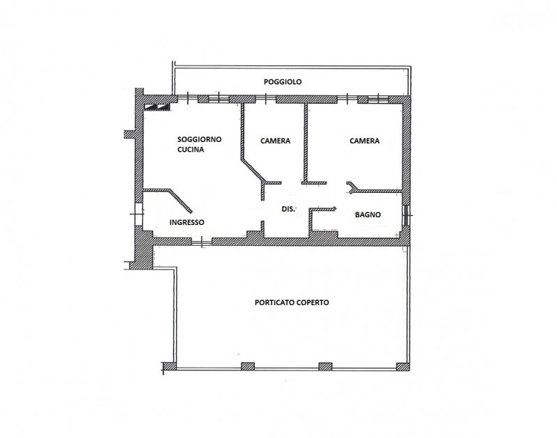
In tranquilla zona residenziale di sottomarina, comoda ai servizi, proponiamo in vendita un appartamento al piano rialzato. Al suo interno si compone di ingresso, soggiorno con angolo cottura, disimpegno, camera da letto matrimoniale, cameretta/studio, bagno finestrato, poggiolo e ampio porticato di 45mq. Compreso nel prezzo un pratico garage, ideale per un'auto di piccole dimensioni o come ricovero per bici, scooter e moto. L'appartamento si presenta in ottime condizioni, ristrutturato di recente, dotato di riscaldamento autonomo a pavimento, serramenti in legno con vetrocamera, doppio condizionatore e sistema di allarme. Viene venduto ammobiliato. Soluzione ideale per chi cerca un appartamento comfortevole e per chi necessita uno spazio esterno.




Caratteristiche immobile:
Codice inserzione: 1760928752
Rif. Annuncio: 801
Provincia: Venezia
Comune: Chioggia
Zona: Sottomarina  
Superficie (Mq) : 55 Mq.
Tipo immobile: Appartamento
Stato immobile: ristrutturato
Camere: 2
Arredato:
Garage: Singolo
Bagni: 1
Terrazze: 2

Costi:
Prezzo € 175.000


Efficienza energetica:
Classe energetica: E
Indice di prestazione energetica (EPgl): 299.19 kWh/mq annui
Riscaldamento: autonomo a pavimento