home page > Annunci immobiliari in Italia > Veneto > Venezia > Chioggia > Negozi uffici capannoni in vendita > Scheda immobile

Negozi uffici capannoni in vendita a Chioggia

COMPILA IL MODULO SOTTOSTANTE PER RICEVERE MAGGIORI INFORMAZIONI







Invia la richiesta ad altre agenzie
Accetto il trattamento dei miei dati



Commerciale immobiliare group

Via p. E. Venturini 2, sottomarina
30015 Chioggia (VE)

041.4582970

Chioggia
Prezzo: € 350.000
1
200
Ultimo piano



Descrizione:
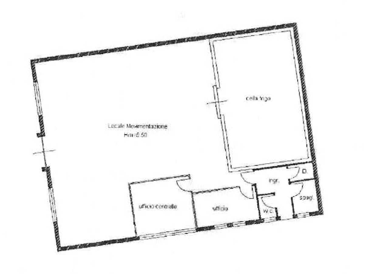
Rif. G255 sottomarina zona porto - in vendita a chioggia, nella caratteristica zona di borgo san giovanni in zona industriale, proponiamo un capannone industriale di 200 mq situato al piano terra. Questa soluzione è ideale per chi cerca uno spazio ampio e versatile, perfetto per attività produttive o di stoccaggio. L'immobile è composto da tre vani e un bagno, con un ingresso indipendente che garantisce la massima autonomia.il capannone si presenta in condizioni da ristrutturare, offrendo l'opportunità di personalizzarlo secondo le proprie esigenze. è importante notare che attualmente non è presente un impianto di riscaldamento, il che permette di intervenire con soluzioni moderne e più efficienti. La posizione strategica di chioggia, unita alla facilità di accesso, rende questo immobile particolarmente interessante per le aziende che desiderano espandere o avviare la propria attività in un contesto economico in crescita. Non perdere l'occasione di visionare questa interessante proposta!prezzo: eu. 350.000 classe energetica: non soggetto




Caratteristiche immobile:
Codice inserzione: 1771476666
Rif. Annuncio: G255
Provincia: Venezia
Comune: Chioggia
Zona: Sottomarina  
Superficie (Mq) : 200 Mq.
Tipo immobile: Negozi uffici capannoni
Stato immobile: usato da riattare
Piano: Ultimo piano
Bagni: 1

Costi:
Prezzo € 350.000


Efficienza energetica:
Classe energetica: Immobile non soggetto all'obbligo di certificazione