home page > Annunci immobiliari in Italia > Veneto > Venezia > Dolo > appartamenti in vendita > Scheda immobile

Appartamento in vendita a Dolo

COMPILA IL MODULO SOTTOSTANTE PER RICEVERE MAGGIORI INFORMAZIONI







Invia la richiesta ad altre agenzie
Accetto il trattamento dei miei dati



Gaia immobiliare di silvia polato

Via leonardo da vinci 15
30030 Vigonovo (VE)

0499832488    Riferimenti: Silvia Polato

Dolo
Prezzo: € 330.000
E
2
2
171
Piano terra



Descrizione:
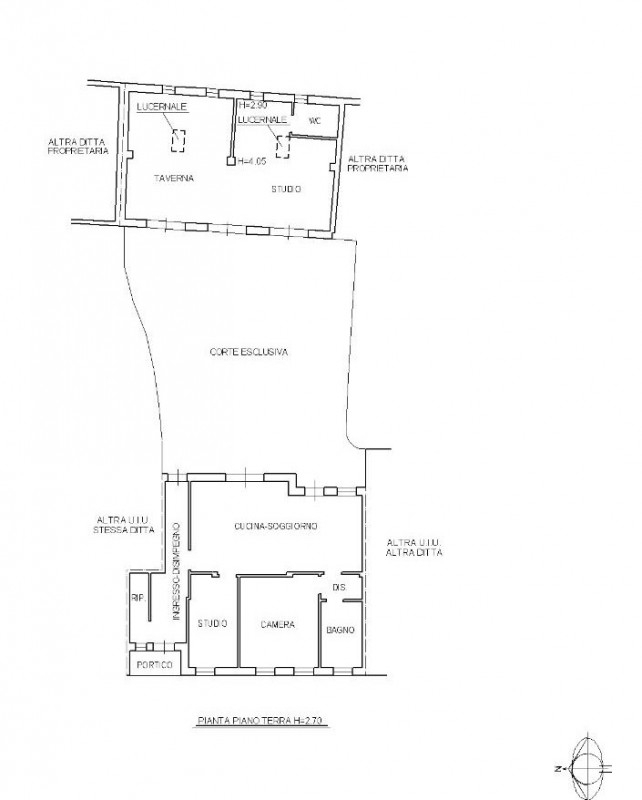
Proponiamo in vendita una splendida soluzione abitativa disponibile da subito, situata nella zona più bella di dolo, il vero cuore pulsante della località rivierasca. Questa rinomata cittadina è apprezzata non solo per la sua bellezza paesaggistica e storica, ma anche per la sua strategica posizione tra venezia e padova.dolo offre un'ampia gamma di servizi essenziali: negozi, scuole di ogni grado, ospedale e supermercati sono facilmente accessibili. Il centro storico vibrante invita a scoprire ristoranti raffinati e locali vivaci che attraggono visitatori tutto l'anno.l'immobile proposto è un luminoso appartamento al piano terra dotato di ingresso indipendente ed è composto da: ingresso accogliente, soggiorno con cucina a vista perfetta per intrattenere amici e famiglia, due camere da letto spaziose e un bagno moderno. un elemento distintivo dell'appartamento è il grazioso giardino privato interno che misura circa 159 mq - ideale per momenti all'aperto o semplicemente per godersi la tranquillità del verde circostante. Oltre allo spazio esterno principale, troviamo una deliziosa dependance open space caratterizzata da ampie vetrate che creano connessioni armoniose tra indoor ed outdoor; gli eleganti travetti a vista conferiscono calore all'ambiente. Completata con bagno privato,questa parte della casa può essere adibita a studio personale, palestra privata oppure come ulteriore appartamentino dedicato agli ospiti o alle feste.non lasciarti sfuggire questa opportunità unica! contattaci oggi stesso per ulteriori informazioni, la visionare delle foto averrà previo colloquio telefonico.visitate il nostro sito: sempre aggiornato con le nostre ultime proposte immobiliari! oppure venite a trovarci in agenzia: gaia immobiliare di silvia polato via l. Da vinci 15/5 vigonovo (ve); o chiamate lo , o inviateci un email al seguente indirizzo: . Saremo sempre a vostra disposizione per qualsiasi informazione! la nostra agenzia opera principalmente nelle zone di vigonovo, strà, fossò, camponogara, fiesso d'artico, padova, vigonza, noventa padovana, saonara, ponte san nicolò e albignasegogaia immobiliare è punto partner solo affitti spa, scopri le nostre proposte per affittare in sicurezza!visita il nostro sito:il presente annuncio è indicativo e non costituisce vincolo o presupposto contrattuale. Tutte le misure riportate devono considerarsi indicative.




Caratteristiche immobile:
Codice inserzione: 1751856661
Rif. Annuncio: 2163
Provincia: Venezia
Comune: Dolo
Superficie (Mq) : 171 Mq.
Tipo immobile: Appartamento
Stato immobile: usato
Anno costruzione/ristrutturazione: 2005
Piano: Piano terra
Camere: 2
Arredato:
Bagni: 2

Costi:
Prezzo € 330.000


Efficienza energetica:
Classe energetica: E
Indice di prestazione energetica (EPgl): 141.8 kWh/mq annui
Riscaldamento: autonomo