home page > Annunci immobiliari in Italia > Veneto > Venezia > Dolo > Case e ville indipendenti in vendita > Scheda immobile

Case e ville indipendenti in vendita a Dolo

COMPILA IL MODULO SOTTOSTANTE PER RICEVERE MAGGIORI INFORMAZIONI







Invia la richiesta ad altre agenzie
Accetto il trattamento dei miei dati



Veneto case foss?

Via roma 1/3
30020 Fossalta di Piave (VE)

0494906465

Dolo
Prezzo: € 650.000
A4
3
3
1



Descrizione:
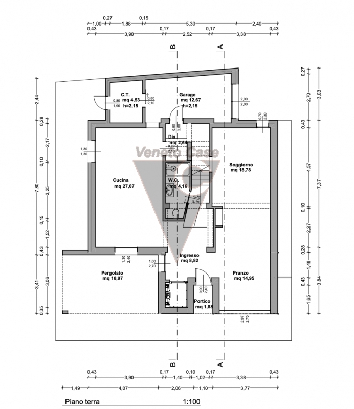
Nel centro di dolo, in una posizione tranquilla ma comoda a tutti i servizi, proponiamo una casa singola di circa 150 mq calpestabili, circondata da un lotto privato di 450 mq. L'abitazione si sviluppa su due livelli e si distingue per gli spazi generosi e ben distribuiti, perfetti per una famiglia o per chi desidera vivere in un ambiente ampio e personalizzabile.al piano terra si apre una luminosa zona giorno composta da soggiorno e cucina separati, per una superficie complessiva di circa 67 mq. All'esterno, un ampio pergolato di 18 mq si affaccia sul giardino, offrendo uno spazio ideale per pranzi all'aperto o momenti di relax nella bella stagione.la zona notte si sviluppa al piano superiore e comprende tre camere da letto, tra cui una matrimoniale con bagno privato e comoda cabina armadio. è inoltre presente la predisposizione per un ascensore interno, un plus che rende la casa adatta anche a chi cerca una soluzione accessibile e pronta per il futuro.grazie alle attuali normative, è possibile usufruire di importanti detrazioni fiscali per lavori di ristrutturazione o anche per interventi più radicali, come la demolizione e ricostruzione, offrendo cosù un'opportunità concreta per valorizzare al massimo l'immobile sia in termini estetici che di efficienza energetica.una casa indipendente nel cuore di dolo, da rinnovare secondo i propri gusti, con tutte le caratteristiche per diventare la dimora ideale per chi cerca spazio, tranquillità e la comodità del centro.classe energetica prevista a4 - rif 520-ddol - euro 650.000veneto case fosso'via roma, 1tel: vicinanze di fossò fiesso dolo strà barbariga vigonza sandon camponogara noventa noventana riviera del brenta liettoli piove campolongo cazzago pianiga campagna lupia bojon




Caratteristiche immobile:
Codice inserzione: 1747709493
Rif. Annuncio: 520-DDOL
Provincia: Venezia
Comune: Dolo
Tipo immobile: Case e ville indipendenti
Stato immobile: nuovo
Anno costruzione/ristrutturazione: 2025
Piano: 1
Camere: 3
Garage: Singolo
Bagni: 3 + lavanderia

Costi:
Prezzo € 650.000


Efficienza energetica:
Classe energetica: A4