home page > Annunci immobiliari in Italia > Veneto > Venezia > Dolo > Case e ville indipendenti in vendita > Scheda immobile

Case e ville indipendenti in vendita a Dolo

COMPILA IL MODULO SOTTOSTANTE PER RICEVERE MAGGIORI INFORMAZIONI







Invia la richiesta ad altre agenzie
Accetto il trattamento dei miei dati



Veneto case foss?

Via roma 1/3
30020 Fossalta di Piave (VE)

0494906465

Dolo
Prezzo: € 339.000
A4
3
2
1
1



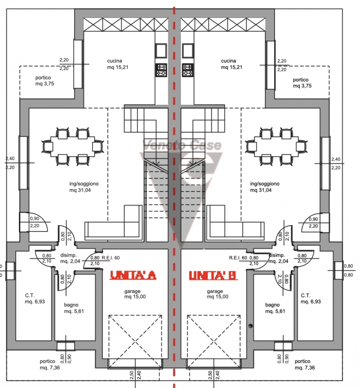
Descrizione:
Se stai cercando una casa moderna, efficiente e con spazi esterni, questa nuova bifamiliare in costruzione a sambruson di dolo è una soluzione progettata per offrire comfort, design e qualità abitativa.inserita in una nuova lottizzazione residenziale composta da abitazioni indipendenti, questa elegante bifamiliare si distingue per le sue linee architettoniche contemporanee, le ampie vetrate e la progettazione degli spazi pensata per la vita quotidiana della famiglia.l'ingresso introduce ad una spaziosa zona living open-space, caratterizzata da ambienti luminosi e ben distribuiti.il soggiorno dialoga armoniosamente con la cucina abitabile, mentre le grandi vetrate creano continuità tra interno ed esterno affacciandosi sul portico coperto e sul giardino privato, ideali per pranzi all'aperto e momenti di relax.al piano terra troviamo inoltre:• bagno finestrato• locale tecnico / lavanderia• disimpegno• garage collegato direttamente all'abitazioneil primo piano è dedicato al comfort della famiglia e comprende:• camera matrimoniale principale• seconda camera matrimoniale• camera singola• bagno finestrato• ripostigliotutte le camere dispongono di accesso diretto alle terrazze, che donano luminosità agli ambienti e offrono spazi esterni privati.l'abitazione è progettata per garantire consumi ridotti e massimo comfort abitativo grazie a impianti di ultima generazione:âœ" impianto fotovoltaico da 5 kwâœ" riscaldamento a pavimentoâœ" pompa di calore aria-acquaâœ" ventilazione meccanica controllata puntualeâœ" predisposizione aria condizionataâœ" predisposizione antifurtol'edificio è inoltre isolato con cappotto termico da 14 cm, per garantire comfort in ogni stagione.soluzioni che permettono elevato risparmio energetico e qualità dell'aria interna. contattaci per ricevere capitolato, planimetrie complete o fissare una visita in cantiere.classe energetica presunta a4 - rif 409dsam - euro 339.000veneto case dolo'via tiziano vecellio 7/htel:




Caratteristiche immobile:
Codice inserzione: 1773287088
Rif. Annuncio: 409DSAM
Provincia: Venezia
Comune: Dolo
Zona: Sambruson  
Tipo immobile: Case e ville indipendenti
Stato immobile: nuovo
Anno costruzione/ristrutturazione: 2026
Piano: 1
Camere: 3
Garage: Singolo
Posti auto scoperti: 1 posto auto
Bagni: 2 + lavanderia
Terrazze: 2

Costi:
Prezzo € 339.000


Efficienza energetica:
Classe energetica: A4