home page > Annunci immobiliari in Italia > Veneto > Venezia > Dolo > Negozi uffici capannoni in vendita > Scheda immobile

Negozi uffici capannoni in vendita a Dolo

COMPILA IL MODULO SOTTOSTANTE PER RICEVERE MAGGIORI INFORMAZIONI







Invia la richiesta ad altre agenzie
Accetto il trattamento dei miei dati



Quimmo agency

Via galileo galilei 6
48018 Faenza (RA)

0299944698

Dolo
Prezzo: € 130.000
D
1
74



Descrizione:
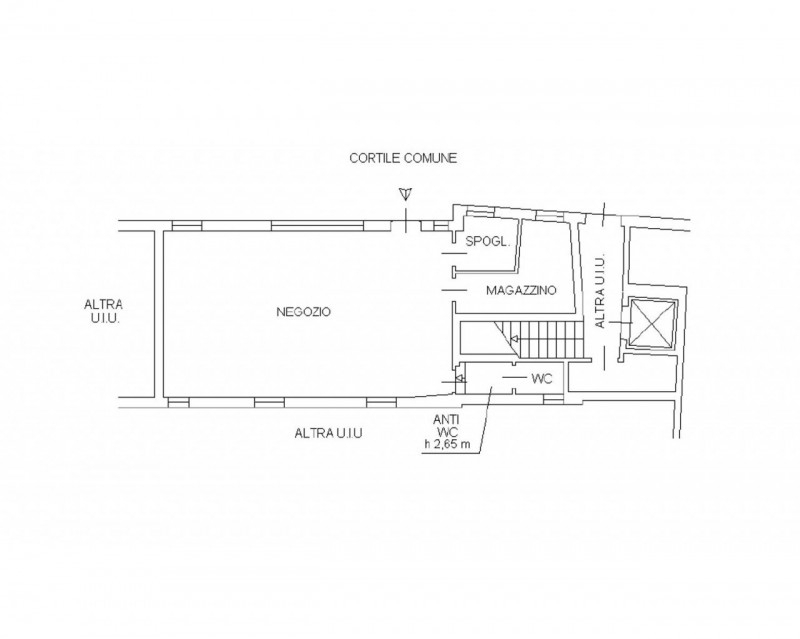
Proponiamo in vendita un negozio al piano terra con superficie catastale di 74 mq, inserito in un fabbricato di maggior consistenza sviluppato su quattro livelli. L'immobile gode di accesso diretto da via giacomo matteotti e si compone di un ampio locale open space destinato alla vendita, un magazzino con annesso spogliatoio, oltre a servizi igienici con antibagno.gli spazi risultano funzionali e ben distribuiti, ideali per attività commerciali, showroom o uffici aperti al pubblico.classe energetica: d epgl,nren 539,80 kwh/m anno.un'opportunità interessante per chi cerca una soluzione pronta all'uso in una zona di forte passaggio e con buona accessibilità.




Caratteristiche immobile:
Codice inserzione: 1757904083
Rif. Annuncio: 2537177
Provincia: Venezia
Comune: Dolo
Superficie (Mq) : 74 Mq.
Tipo immobile: Negozi uffici capannoni
Stato immobile: usato
Bagni: 1

Costi:
Prezzo € 130.000


Efficienza energetica:
Classe energetica: D
Riscaldamento: autonomo