home page > Annunci immobiliari in Italia > Veneto > Venezia > Jesolo > appartamenti in vendita > Scheda immobile

Appartamento in vendita a Jesolo

COMPILA IL MODULO SOTTOSTANTE PER RICEVERE MAGGIORI INFORMAZIONI







Invia la richiesta ad altre agenzie
Accetto il trattamento dei miei dati



De pieri group

Via s. Trentin, 42/a
30016 Jesolo (VE)

3452754640

Jesolo
Prezzo: € 295.000
2
1
80
1



Descrizione:
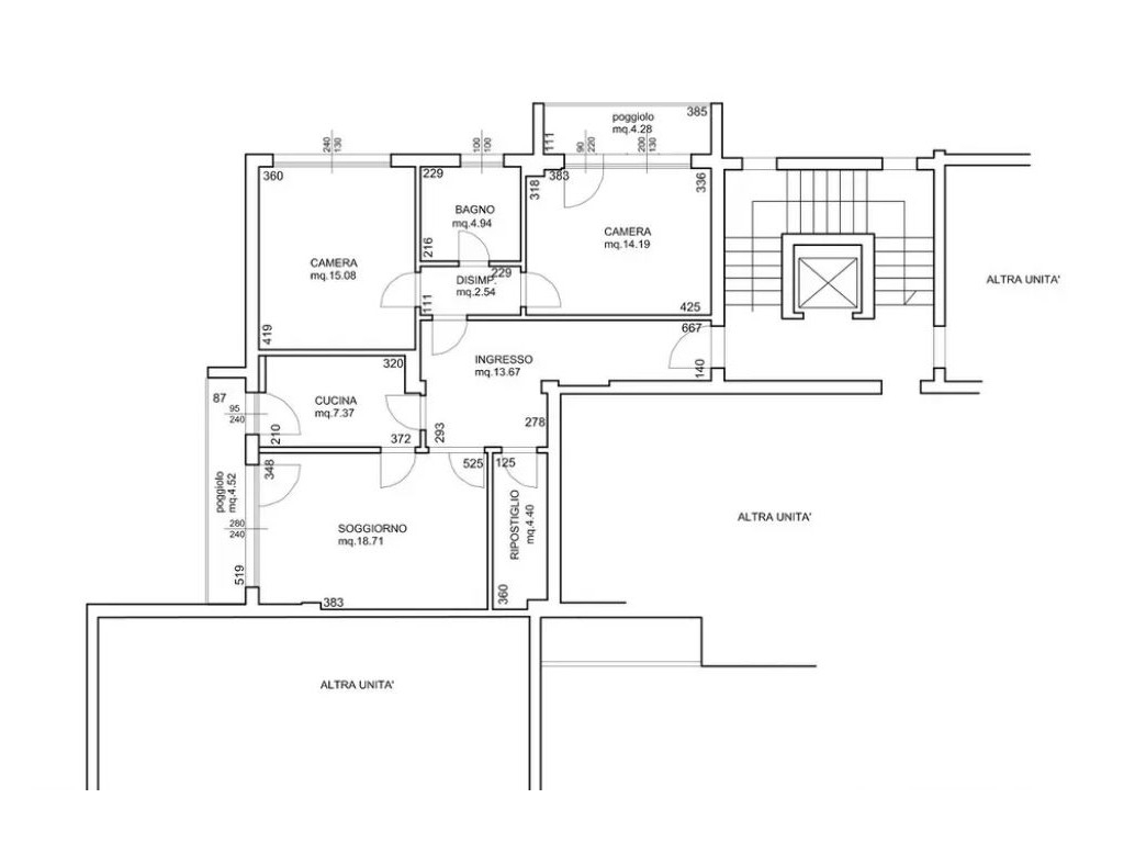
In una struttura vicinissimo a piazza marconi e piazza drago e nella via principale via bafile.vendesi trilocale non arredato al terzo piano con ascensore all'incirca 200 mt dal mare.composizione ingresso, cucina separata, soggiorno, 2 camere matrimoniali, un bagno finestrato, un ripostiglio e due poggioli.posto auto scoperto classe energetica gper qualsiasi informazione contattare:maurizio




Caratteristiche immobile:
Codice inserzione: 1736830647
Rif. Annuncio: 11300565
Provincia: Venezia
Comune: Jesolo
Superficie (Mq) : 80 Mq.
Tipo immobile: Appartamento
Stato immobile: usato
Camere: 2
Posti auto scoperti: 1 posto auto
Bagni: 1

Costi:
Prezzo € 295.000


Efficienza energetica:
Riscaldamento: autonomo