home page > Annunci immobiliari in Italia > Veneto > Venezia > Marcon > Rustici in vendita > Scheda immobile

Rustici in vendita a Marcon

COMPILA IL MODULO SOTTOSTANTE PER RICEVERE MAGGIORI INFORMAZIONI







Invia la richiesta ad altre agenzie
Accetto il trattamento dei miei dati



Asteaffari.com

Viale g. E l. Olivi 38
31100 Treviso

04221781118    Riferimenti: Stefano Dalto

Marcon
Prezzo: € 116.437
435
2
1



Descrizione:
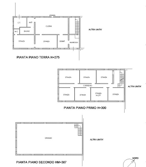
Rif. A.a.ve vendita all'asta - casale con terreno in data 24 novembre 2025descrizione: trattasi di un complesso immobiliare costituito da un ampio fabbricato rurale, dalle sue pertinenze e dalle aree agricole a servizio del fondo (mq.17.055 ca.). Esso è ubicato nel comune di marcon (ve), in località gaggio. Il fabbricato è posto al centro dell'area di proprietà, che risulta parzialmente delimitata sul fronte principale, mentre gli altri lati della proprietà, che ha una conformazione quadrangolare, ne sono privi. l'edificio principale si sviluppa per tre livelli fuori terra, con strutture in elevazione in laterizio, solai in legno, copertura del tetto a due falde, facciate finite in laterizio lavorato a faccia vista. il complesso è in stato di abbandono. Superficie complessiva mq.435. l'immobile viene venduto tramite asta giudiziaria, ed il prezzo indicato si riferisce al prezzo minimo accettato per la partecipazione all'asta .aste-affari fornisce un servizio di assistenza e consulenza tecnica , legale, fiscale e finanziaria su acquisti all'asta e affari immobiliari , al fine di rendere più facile e sicuro l'acquisto di un immobile proveniente dal mercato giudiziario oppure da occasioni presenti sul mercato immobiliare . analisi di fattibilità , tecnica, burocratica, finanziaria , legale , esame problematiche e vincoli , conteggio costi accessori ed occulti, assistenza in tutte le fasi della procedura fino alla consegna delle chiavi dell'immobile .l'acquisto può essere finanziato tramite mutuo , e , ove possibile , anche in pre-asta tramite procedura di saldo-stralcio .soluzioni personalizzate per i debitori .prezzo minimo base asta : euro 116.437,00per info aggiuntive , prenotazione visione, consulenza ed assistenza studio di consulenza : 'aste-affari.com'info :




Caratteristiche immobile:
Codice inserzione: 1760323776
Rif. Annuncio: A.A.VE194297-25
Provincia: Venezia
Comune: Marcon
Zona: Gaggio  
Superficie (Mq) : 435 Mq.
Tipo immobile: Rustici
Stato immobile: usato da riattare
Anno costruzione/ristrutturazione: 1900
Piano: 2
Posti auto scoperti: 1 posto auto

Costi:
Prezzo € 116.437


Efficienza energetica: