home page > Annunci immobiliari in Italia > Veneto > Venezia > Meolo > Negozi uffici capannoni in affitto > Scheda immobile

Negozi uffici capannoni in affitto a Meolo

COMPILA IL MODULO SOTTOSTANTE PER RICEVERE MAGGIORI INFORMAZIONI







Invia la richiesta ad altre agenzie
Accetto il trattamento dei miei dati



Treviso centro

Via san nicolò 12
31100 Treviso

0422541420

Meolo
Prezzo: € 4.000
2
1300
1



Descrizione:
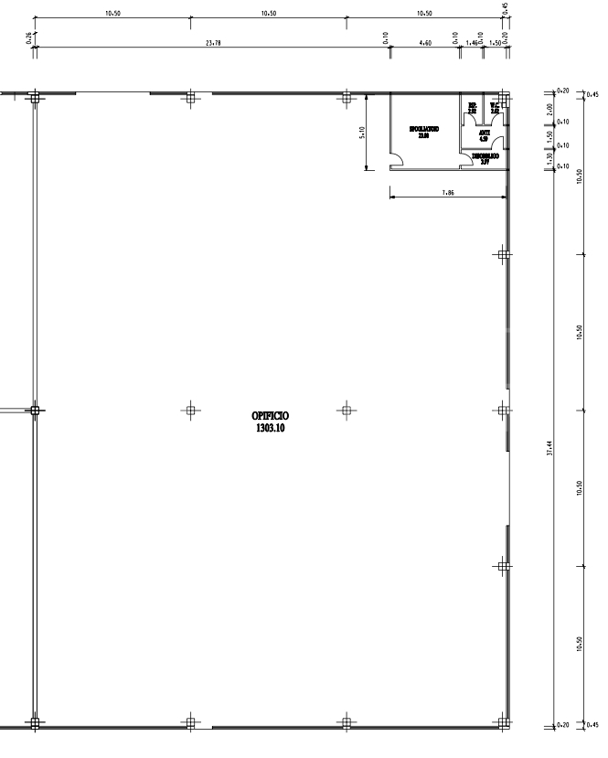
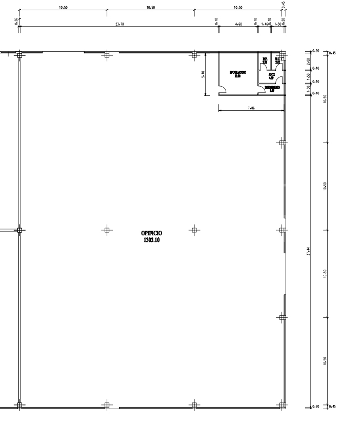
1300 mq di capannone alto 6 metri con 1 ufficio, 2 servizi, altezza sotto trave 6 metri, ampio scoperto, 2 portoni carico scarico. Per info carlo guerra




Caratteristiche immobile:
Codice inserzione: 1759189697
Rif. Annuncio: Cod. rif 3263305ACG
Provincia: Venezia
Comune: Meolo
Superficie (Mq) : 1300 Mq.
Tipo immobile: Negozi uffici capannoni
Posti auto coperti: 1 posto auto
Bagni: 2

Costi:
Prezzo € 4.000


Efficienza energetica: