home page > Annunci immobiliari in Italia > Veneto > Venezia > Mira > Attività commerciali in vendita > Scheda immobile

Attività commerciali in vendita a Mira

COMPILA IL MODULO SOTTOSTANTE PER RICEVERE MAGGIORI INFORMAZIONI







Invia la richiesta ad altre agenzie
Accetto il trattamento dei miei dati



Immobiliare riva s.n.c.

Via gramsci 91
35010 Cadoneghe (PD)

049701015...0498872198    Riferimenti: SEGRETERIA

Mira
Prezzo: € 45.000
G
100
1



Descrizione:
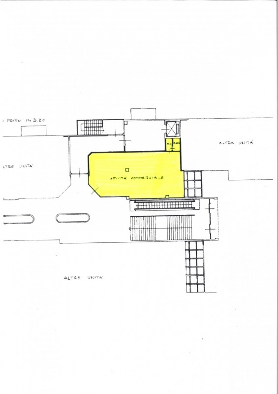
Immobile in esclusiva al gruppo padova mls. mira (ve) - inserita all'interno del centro commerciale 'mirasole', proponiamo in vendita un'attività per commercio al dettaglio di articoli sportivi, ottimamente avviata. gode di una posizione strategica (riviera del brenta), comoda a tutti i servizi e dotata di ampi parcheggi. attualmente è gestita da una persona e c'è la possibilità di potersi accordare per un affiancamento con i nuovi proprietari. l'attività viene svolta presso un negozio di ca. 100 mq complessivi, al piano primo, con anti-w.c. E w.c.; dotato di vetrine e ripostiglio/magazzino. il negozio è locato ad €. 500,00 mensili ed è stato rinnovato ed aggiornato il e scadrà il prezzo richiesto per l'avviamento: €. 45.000,00. spese condominiali di ca. €. 400,00 mensili che comprendono riscaldamento, climatizzazione, consumo acqua e pulizia parti comuni. d.perché vedo che la pubblicità di questo immobile è inserita anche da altre agenzie ?r. Semplice e trasparente: questo è un immobile provvisto di regolare incarico da parte del venditore conferito a una sola agenzia del gruppo padova mls, che grazie all'esclusivo metodo di collaborazione consente, a tutte le agenzie aderenti, di ampliare e potenziare la visibilità dello stesso. Tale attività è debitamente regolamentata tra l'agenzia detentrice del mandato da parte del venditore e le agenzie autorizzate a proporlo.d. Cosa cambia quindi per chi cerca casa?r. Grazie a questo servizio il cliente potrà ricercare senza limiti territoriali la casa desiderata con l'assistenza di un unico interlocutore, che potrà aiutarlo e consigliarlo nella scelta tra tutti gli immobili disponibili nella rete di agenzie che si avvalgono di questo sistema di lavoro, riducendo i tempi di una affannosa ricerca e di continua richiesta di informazioni, e il venditore vede amplificata la promozione del suo immobile.




Caratteristiche immobile:
Codice inserzione: 1775788507
Rif. Annuncio: AS07
Provincia: Venezia
Comune: Mira
Superficie (Mq) : 100 Mq.
Tipo immobile: Attività commerciali
Stato immobile: usato
Anno costruzione/ristrutturazione: 1985
Piano: 1

Costi:
Prezzo € 45.000


Efficienza energetica:
Classe energetica: G
Indice di prestazione energetica (EPgl): 517 kWh/mc annui
Riscaldamento: centralizzato