Descrizione:
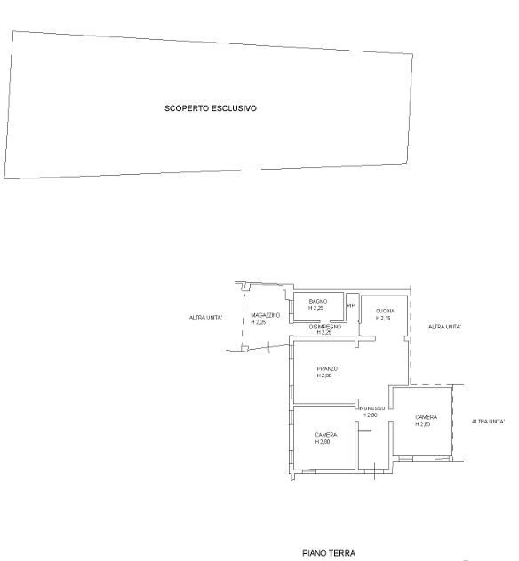
Rif. A.a.348-242vendita all'asta - appartamento con magazzino in data 20 gennaio 2026descrizione: trattasi di un'immobile sito nel comune di mira (ve). L'unità immobiliare, della superficie complessiva di mq.132, è composta da ingresso, con camere ai lati, pranzo e soggiorno, cucina aperta sul soggiorno, disimpegno che conduce al ripostiglio e bagno e infine al magazzino, collegato e aperto sul garage, nella cucina è stato realizzato un controsoffitto. Garage. Quota per 1/2 area scoperta urbana.l'immobile viene venduto tramite asta giudiziaria, ed il prezzo indicato si riferisce al prezzo minimo accettato per la partecipazione all'asta .aste-affari fornisce un servizio di assistenza e consulenza tecnica , legale, fiscale e finanziaria su acquisti all'asta e affari immobiliari , al fine di rendere più facile e sicuro l'acquisto di un immobile proveniente dal mercato giudiziario oppure da occasioni presenti sul mercato immobiliare . analisi di fattibilità , tecnica, burocratica, finanziaria , legale , esame problematiche e vincoli , conteggio costi accessori ed occulti, assistenza in tutte le fasi della procedura fino alla consegna delle chiavi dell'immobile .l'acquisto può essere finanziato tramite mutuo , e , ove possibile , anche in pre-asta tramite procedura di saldo-stralcio .soluzioni personalizzate per i debitori .prezzo minimo base asta : euro 62.136,00per info aggiuntive , prenotazione visione, consulenza ed assistenza studio di consulenza : 'aste-affari.com'info :