home page > Annunci immobiliari in Italia > Veneto > Venezia > Mira > Case e ville indipendenti in vendita > Scheda immobile

Case e ville indipendenti in vendita a Mira

COMPILA IL MODULO SOTTOSTANTE PER RICEVERE MAGGIORI INFORMAZIONI







Invia la richiesta ad altre agenzie
Accetto il trattamento dei miei dati



Symbol immobiliare srl unipersonale

Piazza vittoria 60
30030 Martellago (VE)

0415403275    Riferimenti: SEGRETERIA

Mira
Prezzo: € 118.000
G
3
1
184
1



Descrizione:
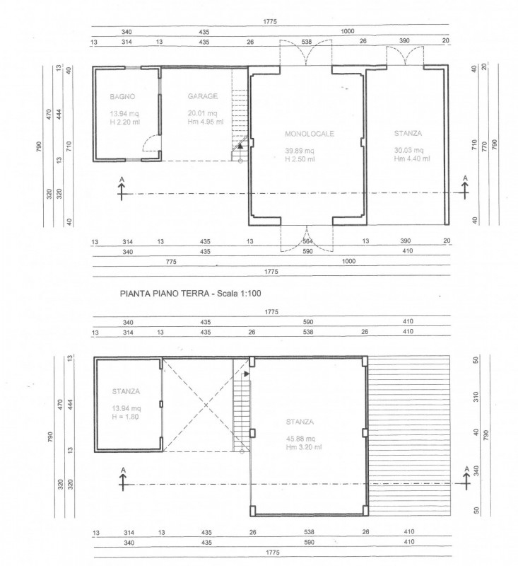
In vendita a gambarare, nel comune di mira, proponiamo un rustico su due piani con una superficie totale di 184 mq. Situato su un lotto di circa 2500 mq, questa proprietà rappresenta un'opportunità unica per chi desidera realizzare la propria casa dei sogni in una delle zone più tranquille e verdi della provincia.l'immobile è attualmente destinato ad uso residenziale ed è da restaurare completamente; tuttavia, offre la possibilità di ampliamento fino a ben 600 mc. Con l'applicazione del piano veneto 2050, si può arrivare a costruire fino a 1000 mc, rendendo possibile la creazione di una splendida villetta singola o bifamiliare secondo le proprie esigenze.la posizione strategica dell'immobile garantisce tranquillità senza rinunciare alla comodità: nelle immediate vicinanze troverete importanti arterie stradali come la romea che collegano facilmente ai principali servizi e alle città limitrofe. La bellezza del verde circostante rende questo luogo ideale per famiglie e amanti della natura.non perdere questa occasione imperdibile! contatta subito l'agenzia per maggiori informazioni e prenota il tuo appuntamento per visitarlo.




Caratteristiche immobile:
Codice inserzione: 1772509177
Rif. Annuncio: 4253
Provincia: Venezia
Comune: Mira
Superficie (Mq) : 184 Mq.
Tipo immobile: Case e ville indipendenti
Stato immobile: usato da riattare
Anno costruzione/ristrutturazione: 1950
Piano: 1
Camere: 3
Garage: Singolo
Bagni: 1

Costi:
Prezzo € 118.000


Efficienza energetica:
Classe energetica: G
Indice di prestazione energetica (EPgl): 564.51 kWh/mq annui