home page > Annunci immobiliari in Italia > Veneto > Venezia > Mira > Negozi uffici capannoni in vendita > Scheda immobile

Negozi uffici capannoni in vendita a Mira

COMPILA IL MODULO SOTTOSTANTE PER RICEVERE MAGGIORI INFORMAZIONI







Invia la richiesta ad altre agenzie
Accetto il trattamento dei miei dati



Futuram srl

Via brescia 31
36040 Torri di Quartesolo (VI)

0444310220    Riferimenti: Federico Carli

Mira
Prezzo: € 56.000
G
60



Descrizione:
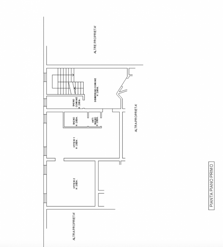
Rif: 058nm - mira (ve) - per info propongo in vendita un ufficio a10 al primo piano in strada nazionale a mira (ve)il locale è composto da due grandi sale e da un bagno con antibagno.altezza di 2,6 metriimpianto elettrico e idrico certificati nel 2008impianto di riscaldamento e raffrescamento da installarepavimentazione in laminatoserramenti in legnobagno con docciaboiler per l'acqua caldaè presente inoltre un disimpegno comune con le altre unità, un bagno con antibagno e un magazzino al piano terrapossibilità di affitto al prezzo di € 450,00 al meseper privacy l'indirizzo riportato su mappa non corrisponde alla reale ubicazione dell'immobile.la presente agenzia immobiliare declina qualsiasi responsabilità in ordine alle informazioni riportate in questo annuncio in quanto le stesse sono da intendersi indicative. La scrivente non assume alcuna responsabilità in ordine all'attualità delle stesse, nonché ad eventuali omissioni o inesattezze. Pertanto le informazioni riportate nel presente annuncio non costituiscono vincolo contrattuale tra le parti.




Caratteristiche immobile:
Codice inserzione: 1761536921
Rif. Annuncio: 058NM
Provincia: Venezia
Comune: Mira
Superficie (Mq) : 60 Mq.
Tipo immobile: Negozi uffici capannoni
Anno costruzione/ristrutturazione: 1900

Costi:
Prezzo € 56.000


Efficienza energetica:
Classe energetica: G
Indice di prestazione energetica (EPgl): 49.6 kWh/mc annui