home page > Annunci immobiliari in Italia > Veneto > Venezia > Portogruaro > appartamenti in vendita > Scheda immobile

Appartamento in vendita a Portogruaro

COMPILA IL MODULO SOTTOSTANTE PER RICEVERE MAGGIORI INFORMAZIONI







Invia la richiesta ad altre agenzie
Accetto il trattamento dei miei dati



Asteaffari.com

Viale g. E l. Olivi 38
31100 Treviso

04221781118    Riferimenti: Stefano Dalto

Portogruaro
Prezzo: € 38.423
F
2
1
100
1



Descrizione:
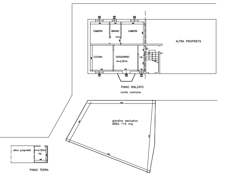
Rif. A.a.218-24vendita all'asta - appartamento al piano terra rialzato in data 11 giugno 2026descrizione: trattasi di un appartamento ubicato al piano rialzato posto sul lato sinistro percorrendo la prima rampa di scala, di un edificio residenziale sito nel comune di portogruaro (ve). L'unità immobiliare è costituita da ingresso, ripostiglio, soggiorno, cucina, 2 camere e un bagno. Al piano secondo con ingresso centrale vi è una soffitta che si sviluppa sulla metà a destra del fabbricato ad uso ripostiglio. All'unità imm.re è attribuita una porzione di giardino ad uso esclusivo e un ripostiglio esterno. Superficie commerciale complessiva mq.100.prezzo minimo base asta : da euro 38.423,00l'immobile viene venduto tramite asta giudiziaria, ed il prezzo indicato si riferisce al prezzo minimo accettato per la partecipazione all'asta.aste-affari fornisce un servizio di assistenza e consulenza tecnica, legale, fiscale e finanziaria su acquisti all'asta e affari immobiliari, al fine di rendere più facile e sicuro l'acquisto di un immobile proveniente dal mercato giudiziario oppure da occasioni presenti sul mercato immobiliare.analisi di fattibilità, tecnica, burocratica, finanziaria, legale, esame problematiche e vincoli, conteggio costi accessori ed occulti, assistenza in tutte le fasi della procedura fino alla consegna delle chiavi dell'immobile.l'acquisto può essere finanziato tramite mutuo, e, ove possibile anche in pre-asta tramite procedura di saldo-stralcio. per info aggiuntive, prenotazione visione, consulenza ed assistenza su asta : studio di consulenza : 'aste-affari.com' info: sei un debitore ? chiamaci ! abbiamo soluzioni personalizzate anche per te.




Caratteristiche immobile:
Codice inserzione: 1776393730
Rif. Annuncio: A.A. 218-24
Provincia: Venezia
Comune: Portogruaro
Zona: Lugugnana  
Superficie (Mq) : 100 Mq.
Tipo immobile: Appartamento
Anno costruzione/ristrutturazione: 1967
Camere: 2
Arredato:
Posti auto scoperti: 1 posto auto
Tipologia giardino : Condominiale
Bagni: 1

Costi:
Prezzo € 38.423


Efficienza energetica:
Classe energetica: F
Riscaldamento: autonomo