home page > Annunci immobiliari in Italia > Veneto > Venezia > Salzano > Attività commerciali in vendita > Scheda immobile

Attività commerciali in vendita a Salzano

COMPILA IL MODULO SOTTOSTANTE PER RICEVERE MAGGIORI INFORMAZIONI







Invia la richiesta ad altre agenzie
Accetto il trattamento dei miei dati



Europa immobiliare

Via miranese 327
30121 Venezia

0415442420    0415446245    3479161687    Riferimenti: Simone Longo

Salzano
Prezzo: info in agenzia
F
400
Ultimo piano



Descrizione:
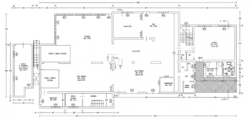
Salzano, sp 35 via villatega.proponiamo in vendita esclusiva, immobile commerciale 'da baldi' composto:al piano terra da:- locale commerciale di 400 mq (sviluppato catastalmente su 2 mappali) comprensivi di servizi igienici, spogliatoi, magazzini con celle frigo e altri locali accessori- 2 aree asfaltate adibite a parcheggio, per ulteriori 2.000 mqattualmente è allestito come ristorante / pizzeria con 2 forni pizza, cucina e bar, con capienza di circa 140 posti a sedere.- possibilità di cambio d'uso in uffici, negozi, ambulatori, area espositiva, concessionari e molto altro ancora.- idoneo anche per progetti residenziali di riqualifica in edilizia sociale, dati i vari contributi erogati per questo settore e l'alta richiesta di appartamenti in affitto. Ottimo come investimento.al primo piano è presente la parte residenziale composta da 3 appartamenti sviluppati su un'area di 200 mqsi vende, sia solo la parte commerciale al pt con i parcheggi, che tutto insieme comprensivo anche della parte residenziale.- no solo la parte residenziale.libero e disponibile in pochi mesi.offriamo assistenza specializzata nell'ambito commerciale per erogazione di mutui / prestiti con i nostri consulenti finanziari.prezzi e condizioni, date la molte possibilità e variabili, verranno descritti e analizzati in fase di appuntamento in ufficio.se realmente interessati a quest'ottima occasione imprenditoriale,contattateci allo per fissare un appuntamento in agenzia a chirignago.




Caratteristiche immobile:
Codice inserzione: 1774496020
Rif. Annuncio: sa38
Provincia: Venezia
Comune: Salzano
Superficie (Mq) : 400 Mq.
Tipo immobile: Attività commerciali
Stato immobile: usato
Piano: Ultimo piano

Costi:
Prezzo info in agenzia


Efficienza energetica:
Classe energetica: F
Indice di prestazione energetica (EPgl): 183.22 kWh/mc annui