Descrizione:
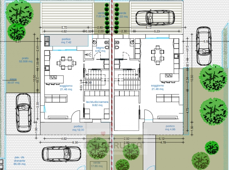
In una delle zone più tranquille e richieste della provincia di venezia, precisamente nel cuore di caltana e poco lontano dall'uscita a4 mirano, vi proponiamo questa splendida bifamiliare in vendita. Con una superficie totale di ben 166 mq a porzione circa, questo immobile è ideale per famiglie che cercano spazio e comfort senza rinunciare alla tranquillità.l'abitazione si presenta con un design moderno e accogliente, caratterizzata da ampie finestre che garantiscono luminosità naturale durante tutto l'arco della giornata. La zona giorno è composta da un elegante soggiorno openspace, con possibilità di essere separato dalla cucina abitabile; quest'ultima offre accesso diretto al giardino privato dove poter trascorrere piacevoli momenti all'aperto o organizzare grigliate con amici e familiari.la proprietà include altri posti auto adiacenti per la massima comodità degli ospiti. L'esterno dell'immobile offre la possibilità di sviluppare dettagli come il giardino, che può essere piantumato e conferire verdeggianti angoli ideali per bambini o animali domestici. Si può scegliere la consegna grezzo o personalizzare l'immobile con le più moderne soluzioni tecnologiche, rendendola ancora più efficiente e confortevole.situata a pochi minuti dal centro del paese, la casa gode di tutte le comodità necessarie come negozi alimentari, scuole locali e mezzi pubblici efficienti che collegano facilmente santa maria di sala alle città vicine come noale o mirano.non perdere questa occasione unica! prezzo a partire da 255.000 euro ( ). Contattaci per ricevere maggiori informazioni oppure prenotare un incontro per avere maggiori dettagli di questa splendida soluzione abitativa.