Descrizione:
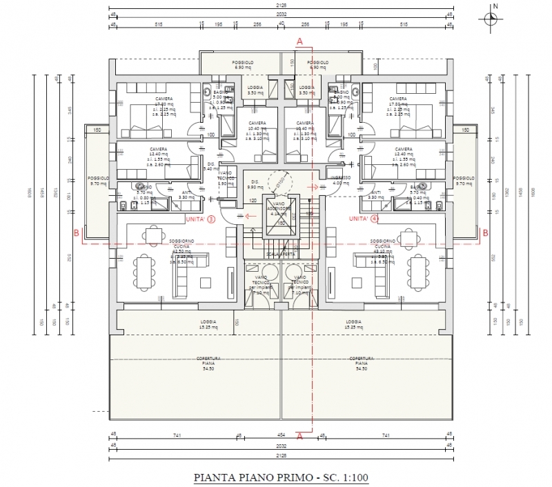
Scorzè - in zona centralissima a scorzè, all'interno di un contesto residenziale ben servito, proponiamo nuovo intervento edilizio che prevede la realizzazione di una palazzina esclusiva di sole 6 unità abitative, servita da ascensore.il fabbricato, sviluppato su tre livelli, è realizzato con finiture di pregio e tecniche costruttive all'avanguardia, progettate per garantire elevato comfort abitativo, ottimo isolamento acustico e alta efficienza energetica.l'appartamento al primo piano si distingue per le ampie metrature e la grande luminosità. L'ingresso conduce a una zona giorno di circa 45 mq, caratterizzata da una vetrata di 4 metri che si apre su uno splendido terrazzo di circa 70 mq con una loggia di circa 15 mq., ideale per momenti di relax e convivialità, creando una perfetta continuità tra interno ed esterno.completano la zona giorno un comodo antibagno, con possibilità di ricavare un pratico ripostiglio, e un bagno finestrato.un disimpegno accompagna alla zona notte, composta da una spaziosa camera matrimoniale di circa 18 mq., una camere media e una singola, entrambe con affaccio su poggiolo esterno, e un secondo bagno finestrato.a completare la proprietà, garage di generose dimensioni al piano terra e posto auto esterno.unita' 4 metratura : - zona giorno 43,10 mq.- ingresso 4,00 mq. - disimpegno 1,00 mq. - antibagno 3,30 mq. - bagno 5,70 mq. - camera 12,40 mq. - camera 17,80 mq. - bagno 5,00 mq. - camera 10,40 mq. - loggia 15,25 mq. - terrazza 54,50 mq. - garage 17,35 mq. - classe energetica a4- predisposizione allarme perimetrale e volumetrico- riscaldamento a pavimento- pompa di calore- aria condizionata canalizzata + split zona giorno- impianto fotovoltaico- tapparelle elettriche- serramenti in legno- impianto vmc canalizzato- zanzariere- basculante motorizzatorif. 25.sco.a3 prezzo € 315.000,00sei interessato?per ulteriori informazioni non esitare a contattarci+39 è (ve) 30037, via cercariolo 2/aseguici anche su facebook e instagram per rimanere sempre aggiornato sulle nostre proposte.hai trovato la casa che desideravi da tanto tempo, ma hai bisogno di un mutuo per far avverare il tuo sogno? l'agenzia immobiliare i portici ti offre la consulenza di professionisti del settore che ti aiuteranno a trovare il mutuo più accessibile in base alle tue disponibilità economiche, aiutandoti ad orientarti nella scelta tra mutuo a tasso fisso, variabile o misto e ad usufruire delle agevolazioni fiscali previste. Il tutto nella massima trasparenza e professionalità.si intende precisare che gli indirizzi presenti negli annunci non sono identificativi dell'ubicazione precisa dell'immobile,danno un riferimento solo generico della zona al cliente che ricerca, al fine di tutelare la privacy e riservatezza del venditore.