home page > Annunci immobiliari in Italia > Veneto > Venezia > Scorzè > Case e ville indipendenti in vendita > Scheda immobile

Case e ville indipendenti in vendita a Scorzè

COMPILA IL MODULO SOTTOSTANTE PER RICEVERE MAGGIORI INFORMAZIONI







Invia la richiesta ad altre agenzie
Accetto il trattamento dei miei dati



Symbol immobiliare srl unipersonale

Piazza vittoria 60
30030 Martellago (VE)

0415403275    Riferimenti: SEGRETERIA

Scorzè
Prezzo: € 209.000
3
2
170
1
1



Descrizione:
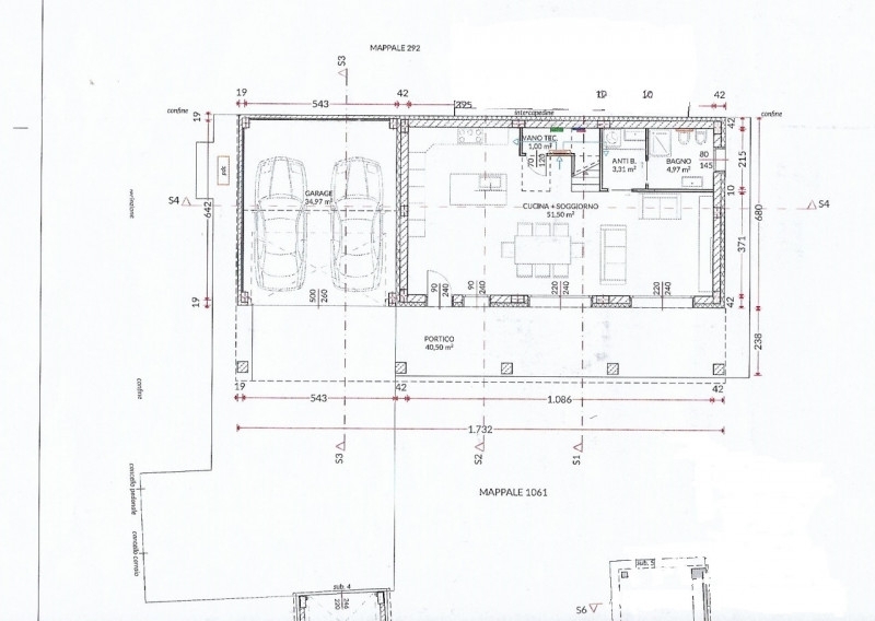
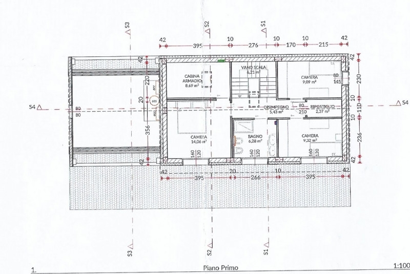
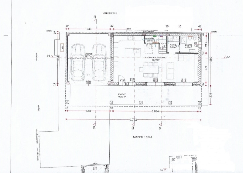
Nel comune di scorzè, in una posizione tranquilla ma allo stesso tempo comoda ai principali servizi, proponiamo in vendita una interessante villetta singola al grezzo, ideale per chi desidera realizzare una casa completamente personalizzata.l'immobile è inserito in un contesto riservato ed è circondato da un ampio giardino privato di circa 650 mq, perfetto per chi cerca indipendenza, spazio esterno e privacy.la casa si sviluppa su due livelli ed è caratterizzata da una struttura moderna con travi a vista, elemento che dona calore e carattere agli ambienti. Essendo proposta allo stato grezzo, offre la possibilità di scegliere liberamente finiture, disposizione interna e dettagli, adattandola alle proprie esigenze abitative.al piano terra troviamo l'ingresso che conduce ad un ampio e luminoso soggiorno open space con cucina a vista di ben 51 mq, ideale per la vita quotidiana e per accogliere ospiti, oltre a bagno con antibagno, vano tecnico e comodo garage doppio.il piano primo ospita la zona notte composta da tre camere da letto, di cui una matrimoniale con cabina armadio e due camere singole, oltre a bagno, ripostiglio e sottotetto.a completare la proprietà vi è la possibilità, già prevista da progetto approvato, di realizzare un magazzino esterno indipendente e una pompeiana, aumentando ulteriormente la funzionalità degli spazi esterni.soluzione perfetta per chi desidera una casa singola moderna, personalizzabile e immersa nella tranquillità, senza rinunciare alla comodità dei servizi.disponibile da subito. Classe energetica esente.




Caratteristiche immobile:
Codice inserzione: 1774582627
Rif. Annuncio: 3959
Provincia: Venezia
Comune: Scorzè
Superficie (Mq) : 170 Mq.
Tipo immobile: Case e ville indipendenti
Stato immobile: nuovo
Anno costruzione/ristrutturazione: 2024
Piano: 1
Camere: 3
Garage: Doppio
Posti auto scoperti: 1 posto auto
Bagni: 2

Costi:
Prezzo € 209.000


Efficienza energetica:
Classe energetica: Immobile non soggetto all'obbligo di certificazione