Descrizione:
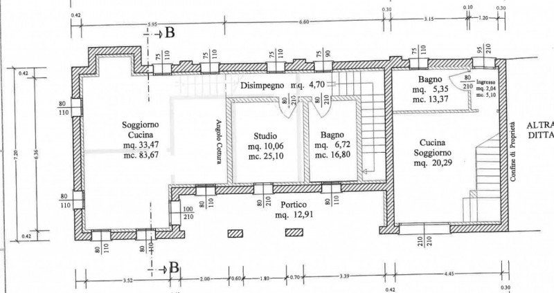
Peseggia- in zona immersa nel verde e nella campagna proponiamo rustico da ristrutturare completamente in lotto di 1160 mq. rustico di circa 200 mq disposto su due livelli e accostato ad un'altra unità.oneri pagati e progetto approvato per due unità (planimetrie allegate).il progetto non è modificabile ed il nuovo edificio dovrà essere costruito esattamente nella posizione dove oggi è presente il rustico.prezzo: € 58.000,00rif: 12.pese.rper ulteriori informazioni non esitare a contattarci+39 è (ve) 30037, via cercariolo 2/aseguici anche su facebook e instagram per rimanere sempre aggiornato sulle nostre proposte.hai trovato la casa che desideravi da tanto tempo, ma hai bisogno di un mutuo per far avverare il tuo sogno? l'agenzia immobiliare i portici ti offre la consulenza di professionisti del settore che ti aiuteranno a trovare il mutuo più accessibile in base alle tue disponibilità economiche, aiutandoti ad orientarti nella scelta tra mutuo a tasso fisso, variabile o misto e ad usufruire delle agevolazioni fiscali previste. Il tutto nella massima trasparenza e professionalità.hai già un venditore o un acquirente per il tuo immobile? affidati a noi per gestire nella massima sicurezza e professionalità tutta la pratica! grazie alla nostra assistenza arriverai al rogito nella massima tranquillità, terremo noi i contatti con il notaio e con le banche per il mutuo.se invece hai un appartamento da affittare o in affitto, possiamo consigliarti le migliori opzioni di contratto e provvedere al tuo posto a tutti gli adempimenti, come registrazione e rinnovo.si intende precisare che gli indirizzi presenti negli annunci non sono identificativi dell'ubicazione precisa dell'immobile,danno un riferimento solo generico della zona al cliente che ricerca, al fine di tutelare la privacy e riservatezza del venditore.