Descrizione:
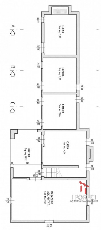
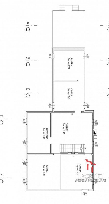
Peseggia - proponiamo rustico singolo con 5000 o 9000 mq di terreno.rustico con 600 mc da ristrutturare interamente, sviluppato su due livelli.possibilità di realizzare anche due unità abitative.possibilità di acquistare il rustico:-rustico con 5000 mq di terreno € 170.000,00-rustico con 9000 mq di terreno € 198.000,00rustico immerso nel verde, ideale per chi desidera un rustico con molto terreno e comodo alle principali vie di comunicazione.- 6,4 km da mogliano veneto- 12,6 km da mestre possibilità di usufruire di incentivi e detrazioni fiscali previsti dalla legge.prezzo: € 170.000,00 o € 198.000,00riferimento: 02.pese.r sei interessato?per ulteriori informazioni non esitare a contattarci +39 :// (ve) 30037, via cercariolo 2/aseguici anche su facebook e instagram per rimanere sempre aggiornato sulle nostre proposte.hai trovato la casa che desideravi da tanto tempo, ma hai bisogno di un mutuo per far avverare il tuo sogno? l'agenzia immobiliare i portici ti offre la consulenza di professionisti del settore che ti aiuteranno a trovare il mutuo più accessibile in base alle tue disponibilità economiche, aiutandoti ad orientarti nella scelta tra mutuo a tasso fisso, variabile o misto e ad usufruire delle agevolazioni fiscali previste. Il tutto nella massima trasparenza e professionalità.hai già un venditore o un acquirente per il tuo immobile? affidati a noi per gestire nella massima sicurezza e professionalità tutta la pratica! grazie alla nostra assistenza arriverai al rogito nella massima tranquillità, terremo noi i contatti con il notaio e con le banche per il mutuo.se invece hai un appartamento da affittare o in affitto, possiamo consigliarti le migliori opzioni di contratto e provvedere al tuo posto a tutti gli adempimenti, come registrazione e rinnovo.si intende precisare che gli indirizzi presenti negli annunci non sono identificativi dell'ubicazione precisa dell'immobile,danno un riferimento solo generico della zona al cliente che ricerca, al fine di tutelare la privacy e riservatezza del venditore.