home page > Annunci immobiliari in Italia > Veneto > Venezia > Scorzè > Terreni in vendita > Scheda immobile

Terreni in vendita a Scorzè

COMPILA IL MODULO SOTTOSTANTE PER RICEVERE MAGGIORI INFORMAZIONI







Invia la richiesta ad altre agenzie
Accetto il trattamento dei miei dati



Aemme srls

Corso del popolo n. 50
30121 Venezia

0415648669    0415648669

Scorzè
Prezzo: € 170.000
2350



Descrizione:
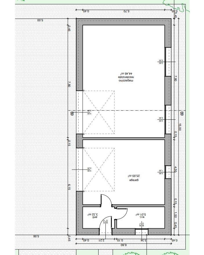
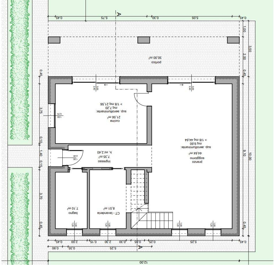
Cappella di scorze' lotto edificabile con progetto approvatoottima opportunità per chi cerca spazio, tranquillità e personalizzazione! a soli pochi minuti a piedi dal centro di zero branco e di cappella, proponiamo lotto edificabile di 2.350 mq con progetto approvato e oneri già pagati per la realizzazione di una villa singola con dépendance.il progetto prevede:villa su due livelli di circa 240 mq4 camere3 bagnilavanderiasoggiorno e cucina separati 66mqporticato di 36 mqfabbricato accessorio indipendente con:garage doppio (25 mq)wclocale multiuso di 45 mqil lotto, servito da due accessi carrai, offre la possibilità di modificare e personalizzare il progetto secondo le proprie esigenze. grazie alle ampie dimensioni, è inoltre possibile realizzare più unità abitative (es. Una bifamiliare e una singola, oppure due ville indipendenti).posizione tranquilla e comoda ai servizi, ideale per chi desidera vivere nel verde senza rinunciare alla vicinanza al centro.rif. Rvsco785 maggiori informazioni e planimetrie in agenzia commerciale casa mestre via ca rossa 85.




Caratteristiche immobile:
Codice inserzione: 1762148001
Rif. Annuncio: RVSCO785
Provincia: Venezia
Comune: Scorzè
Superficie (Mq) : 2350 Mq.
Tipo immobile: Terreni
Stato al rogito: Libero

Costi:
Prezzo € 170.000


Efficienza energetica: