home page > Annunci immobiliari in Italia > Veneto > Venezia > Spinea > Case e ville indipendenti in vendita > Scheda immobile

Case e ville indipendenti in vendita a Spinea

COMPILA IL MODULO SOTTOSTANTE PER RICEVERE MAGGIORI INFORMAZIONI







Invia la richiesta ad altre agenzie
Accetto il trattamento dei miei dati



Europa immobiliare

Via miranese 327
30121 Venezia

0415442420    0415446245    3479161687    Riferimenti: Simone Longo

Spinea
Prezzo: € 280.000
G
4
160
Su due livelli
350 Mq
2



Descrizione:
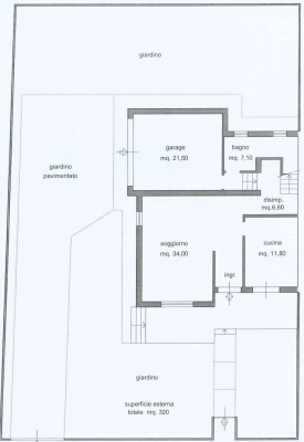
SPINEA centro AMPIA PORZIONE di BIFAMILIARE in due livelli con ampio verde mq 350 soggiorno grande, cucina abitabile, bagno, garage doppio al p.1? 3 CAMERE MATRIMONIALI, studio, bagno. IDEALE PER GLI AMPI SPAZI!




Caratteristiche immobile:
Codice inserzione: 1339685242
Rif. Annuncio: spi30
Provincia: Venezia
Comune: Spinea
Superficie (Mq) : 160 Mq.
Tipo immobile: Case e ville indipendenti
Stato immobile: usato
Piano: Su due livelli
Camere: 4
Garage: Singolo
Posti auto scoperti: 2 posti auto
Giardino : 350 Mq.
Tipologia giardino : Privato
Terrazze: 2

Costi:
Prezzo € 280.000


Efficienza energetica:
Classe energetica: G
Indice di prestazione energetica (EPgl): 175 kWh/mq annui
Riscaldamento: autonomo