home page > Annunci immobiliari in Italia > Veneto > Venezia > Spinea > Negozi uffici capannoni in vendita > Scheda immobile

Negozi uffici capannoni in vendita a Spinea

COMPILA IL MODULO SOTTOSTANTE PER RICEVERE MAGGIORI INFORMAZIONI







Invia la richiesta ad altre agenzie
Accetto il trattamento dei miei dati



4c srl

Via bagutta 13
20121 Milano

3755023654    Riferimenti: 4C SRL

Spinea
Prezzo: € 149.000
F
125
2



Descrizione:
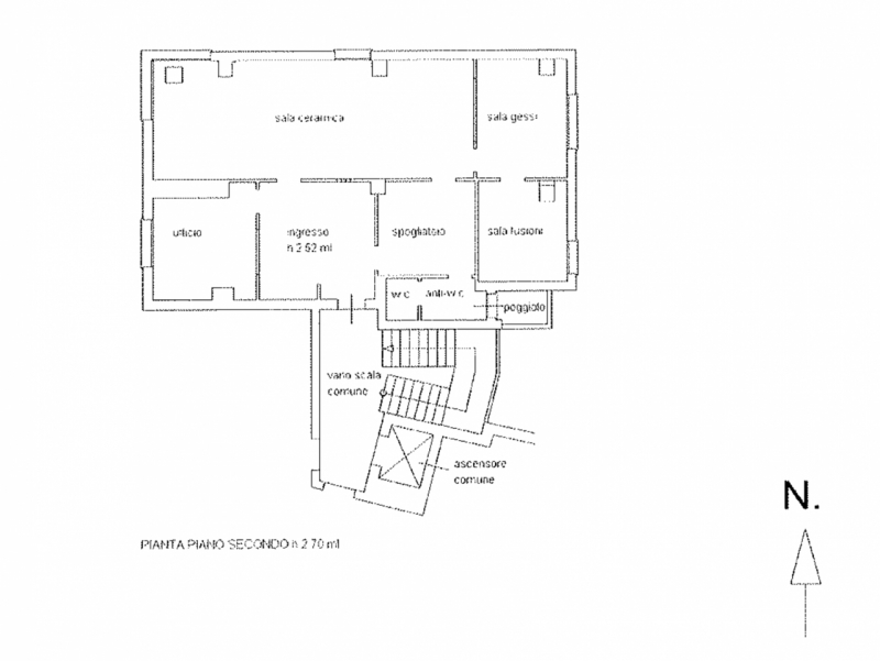
Ufficio ristrutturato zona centrale di primario interesse spinea € 149.000,00in zona centrale e di primario interesse a spinea, proponiamo ufficio recentemente ristrutturato, situato al piano secondo, ideale per studi professionali, società di servizi o uffici direzionali.l'immobile si sviluppa su una superficie complessiva di circa 140 mq, caratterizzata da ampie vetrate che garantiscono eccellente luminosità.distribuzione interna:5 stanze ideali per uffici operativi e postazioni di lavoroampia sala di circa 70 mq, perfetta come sala riunioni, sala corsi o open space direzionaleingresso dedicato per receptionservizio igienicocaratteristiche principali:ristrutturazione recenteottime condizioni generaliambienti moderni e funzionalipronto da subitoposizione centrale e strategicasoluzione ideale per chi cerca un ufficio rappresentativo, in una delle zone più richieste di spinea.prezzo richiesto: € 149.000,00




Caratteristiche immobile:
Codice inserzione: 1767006637
Rif. Annuncio: SP01
Provincia: Venezia
Comune: Spinea
Superficie (Mq) : 125 Mq.
Tipo immobile: Negozi uffici capannoni
Stato immobile: usato
Anno costruzione/ristrutturazione: 1967
Piano: 2

Costi:
Prezzo € 149.000


Efficienza energetica:
Classe energetica: F
Indice di prestazione energetica (EPgl): 149.68 kWh/mc annui
Riscaldamento: autonomo