home page > Annunci immobiliari in Italia > Veneto > Verona > Cavaion Veronese > appartamenti in vendita > Scheda immobile

Appartamento in vendita a Cavaion Veronese

COMPILA IL MODULO SOTTOSTANTE PER RICEVERE MAGGIORI INFORMAZIONI







Invia la richiesta ad altre agenzie
Accetto il trattamento dei miei dati



Punto rete srl

Via madonna 73
37026 Pescantina (VR)

0456704490    Riferimenti: Punto Rete Srl

Cavaion Veronese
Prezzo: € 280.000
C
2
2
110
1
1



Descrizione:
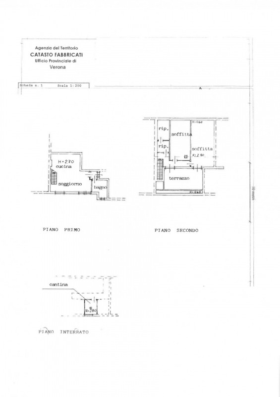
Cavaion veronese - appartamento con ampia terrazzazona e contestoin una delle zone più tranquille di cavaion veronese, immersa nel verde ma a pochi minuti dai principali servizi del paese, proponiamo in vendita un appartamento disposto su due livelli, inserito in un complesso residenziale curato e ben mantenuto. descrizionel'abitazione si trova al primo piano e si apre su un accogliente e luminoso soggiorno con cucina a vista, impreziosito da spazi ben distribuiti e ambienti ariosi. Sullo stesso livello è presente un bagno/lavanderia di servizio.una scala in legno conduce al piano superiore, dove si apre una splendida terrazza di circa 30 mq. la zona notte comprende una camera da letto matrimoniale con ampia cabina armadio, una camera doppia e un bagno finestrato completo di doccia e vasca.a completare la proprietà, due garage singoli e una cantina al piano interrato.dotazioni e comfortl'appartamento si presenta in ottime condizioni generali, con infissi in doppio vetro, aria condizionata con due split (uno nella zona giorno e uno nella zona notte), caldaio a condensazione sostituita nel 2022 e riscaldamento autonomo.tre motivi per acquistare questa soluzione:- ampia terrazza panoramica di 30 mq- contesto residenziale tranquillo e curato- in zona servita




Caratteristiche immobile:
Codice inserzione: 1762400837
Rif. Annuncio: 4646648
Provincia: Verona
Comune: Cavaion Veronese
Superficie (Mq) : 110 Mq.
Tipo immobile: Appartamento
Stato immobile: usato
Anno costruzione/ristrutturazione: 2004
Piano: 1
Camere: 2
Garage: Singolo
Posti auto scoperti: 1 posto auto
Tipologia giardino : Condominiale
Bagni: 2
Terrazze: 1

Costi:
Prezzo € 280.000


Efficienza energetica:
Classe energetica: C
Riscaldamento: autonomo