home page > Annunci immobiliari in Italia > Veneto > Verona > Cologna Veneta > Case e ville indipendenti in vendita > Scheda immobile

Case e ville indipendenti in vendita a Cologna Veneta

COMPILA IL MODULO SOTTOSTANTE PER RICEVERE MAGGIORI INFORMAZIONI







Invia la richiesta ad altre agenzie
Accetto il trattamento dei miei dati



Tecnostudio snc di vanzan giuseppe & c.

Piazza liberazione 1
37044 Cologna Veneta (VR)

0442412516    Riferimenti: Giuseppe Vanzan

Cologna Veneta
Prezzo: € 88.000
3
2
260



Descrizione:
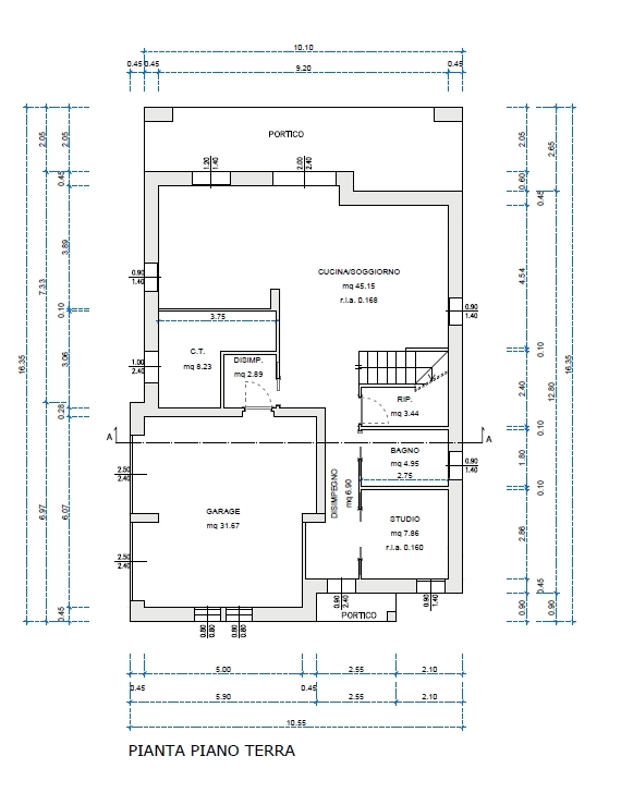
In frazione di cologna veneta, proponiamo in vendita un lotto edificabile di 600 mq, con ulteriori 600 mq di terreno attigui, comprensivi di progetto approvato, oneri di costruzione già pagati. Il progetto prevede una casa su due piani con tre bagni, tre camere da letto, lavanderia, terrazzi, garage doppio, porticato, studio/camera al piano terra etc..la posizione è tranquilla, ideale per chi cerca un contesto sereno e residenziale.




Caratteristiche immobile:
Codice inserzione: 1737345599
Rif. Annuncio: 4328640
Provincia: Verona
Comune: Cologna Veneta
Zona: Sule  
Superficie (Mq) : 260 Mq.
Tipo immobile: Case e ville indipendenti
Camere: 3
Garage: Doppio
Bagni: 2
Terrazze: 2

Costi:
Prezzo € 88.000


Efficienza energetica: