home page > Annunci immobiliari in Italia > Veneto > Verona > Rivoli Veronese > Attività commerciali in vendita > Scheda immobile

Attività commerciali in vendita a Rivoli Veronese

COMPILA IL MODULO SOTTOSTANTE PER RICEVERE MAGGIORI INFORMAZIONI







Invia la richiesta ad altre agenzie
Accetto il trattamento dei miei dati



Renova cavaion veronese

Via pozzo dell'amore, 20
37010 Cavaion Veronese (VR)

0456260526

Rivoli Veronese
Prezzo: € 350.000
E
4
380
Piano terra



Descrizione:
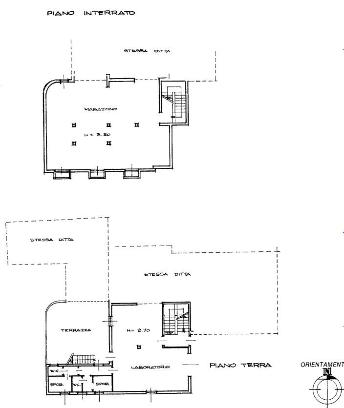
Nel cuore pulsante di rivoli veronese, in una posizione strategica sia per la visibilità sia per la comodità ai principali collegamenti stradali, proponiamo in vendita un'ampia soluzione commerciale al piano terra, già strutturata per ospitare una molteplicità di attività professionali, artigianali o commerciali. Con i suoi 220 mq al piano terra e ulteriori 160 mq al piano interrato, questo immobile rappresenta un'opportunità rara per chi è alla ricerca di uno spazio ampio, funzionale e facilmente accessibile.il locale si sviluppa su due livelli collegati e già suddivisi in modo razionale. Al piano terra troviamo due ambienti distinti ma comunicanti, attualmente utilizzati come laboratorio e negozio, caratterizzati da grandi superfici finestrate che garantiscono un'eccellente illuminazione naturale durante tutto l'arco della giornata e offrono una vetrina diretta sulla strada. Questa configurazione permette una fruibilità immediata per attività a contatto con il pubblico, show-room, studi professionali, attività di vendita diretta o servizi alla persona, ma è anche facilmente adattabile in base alle esigenze specifiche dell'acquirente, potendo essere rimodulata in un unico open space o ulteriormente frazionata.gli ambienti interni si presentano in buono stato manutentivo, con finiture sobrie e impiantistica funzionante, pronti per essere utilizzati sin da subito. L'accesso è comodo, direttamente dalla via principale del paese, garantendo ottima visibilità pedonale e veicolare, grazie alla collocazione centrale in un contesto urbanizzato e frequentato.al piano interrato, raggiungibile tramite scala interna e rampa carrabile esterna, si trova uno spazio accessorio di ulteriori 160 mq adibito a magazzino e deposito, ideale per lo stoccaggio merci, l'allestimento di un laboratorio operativo o come supporto logistico a un'attività commerciale. La rampa permette l'accesso diretto anche con mezzi motorizzati, furgoni o veicoli da lavoro, facilitando operazioni di carico e scarico in modo pratico e riservato.uno degli aspetti più apprezzabili di questa soluzione è la disponibilità di parcheggi: è infatti possibile posteggiare direttamente davanti al negozio, garantendo comodità sia per i clienti sia per il personale, e usufruire anche dell'ampio parcheggio comunale adiacente, una comodità che rende ancora più agevole la gestione dei flussi di accesso alla struttura.la posizione dell'immobile, nel cuore del paese ma vicino agli accessi stradali principali, ne accresce ulteriormente il potenziale commerciale: rivoli veronese si trova infatti in un punto nevralgico per il collegamento tra il lago di garda, la valdadige e la lessinia, con un bacino d'utenza ampio e in continua crescita, anche grazie al turismo e alla presenza di attività produttive sul territorio.questo locale rappresenta quindi una soluzione estremamente interessante per chi cerca una sede di rappresentanza, uno spazio per una nuova apertura, oppure un investimento versatile e sicuro, in grado di adattarsi a diverse destinazioni d'uso, dalla vendita al dettaglio alla somministrazione, dai servizi alla logistica leggera, fino ad attività artigianali, studi tecnici o laboratori.le ampie metrature, l'accesso facilitato, la posizione centrale, la possibilità di parcheggio e l'assenza di lavori immediati rendono questa proposta una vera opportunità per avviare o ampliare la propria attività in una zona ad alto potenziale, con ottima visibilità e una struttura già pronta all'uso.prezzo richiesto: eu. 350.000,00classe energetica: friferimento: 030 classe energetica: e epi: 75 kwh/m3 anno




Caratteristiche immobile:
Codice inserzione: 1761540752
Rif. Annuncio: 030
Provincia: Verona
Comune: Rivoli Veronese
Superficie (Mq) : 380 Mq.
Tipo immobile: Attività commerciali
Piano: Piano terra
Arredato:
Bagni: 4

Costi:
Prezzo € 350.000


Efficienza energetica:
Classe energetica: E
Indice di prestazione energetica (EPgl): 75 kWh/mc annui
Riscaldamento: autonomo