home page > Annunci immobiliari in Italia > Veneto > Verona > San Bonifacio > Case e ville a schiera in vendita > Scheda immobile

Case e ville a schiera in vendita a San Bonifacio

COMPILA IL MODULO SOTTOSTANTE PER RICEVERE MAGGIORI INFORMAZIONI







Invia la richiesta ad altre agenzie
Accetto il trattamento dei miei dati



Immobiliare piasente

Corso venezia 41
37047 San Bonifacio (VR)

0457614894    0456118698    Riferimenti: Silvano Avogaro

San Bonifacio
Prezzo: € 450.000
A3
3
3
280
1



Descrizione:
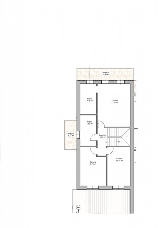
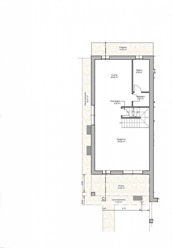
Nella tranquilla zona di prova, vi presentiamo un'opportunità imperdibile: una porzione di testa di casa a schiera in fase di costruzione. Questo immobile unico si estende su una generosa superficie di 280 mq e include un magnifico giardino privato di ben 270 mq, perfetto per famiglie che desiderano spazio all'aperto o semplicemente amano la natura.inserita all'interno di una palazzina trifamiliare, questa soluzione abitativa offre un'ottima privacy e tranquillità. La distribuzione degli spazi è pensata per garantire comfort e funzionalità; gli ambienti sono luminosi grazie alle ampie finestre che affacciano sul verde del proprio giardino. Le metrature delle stanze sono imbattibili come potete verificare nelle planimetrie allegate. non perdere l'occasione unica di personalizzare questa splendida proprietà secondo le tue esigenze! contatta ora la nostra agenzia per maggiori informazioni o per fissare un appuntamento.




Caratteristiche immobile:
Codice inserzione: 1733110756
Rif. Annuncio: 026
Provincia: Verona
Comune: San Bonifacio
Zona: Prova  
Superficie (Mq) : 280 Mq.
Tipo immobile: Case e ville a schiera
Stato immobile: nuovo
Anno costruzione/ristrutturazione: 2026
Piano: 1
Camere: 3
Garage: Doppio
Bagni: 3 + lavanderia
Terrazze: 1

Costi:
Prezzo € 450.000


Efficienza energetica:
Classe energetica: A3
Indice di prestazione energetica (EPgl): 26.33 kWh/mq annui
Riscaldamento: autonomo a pavimento