Descrizione:
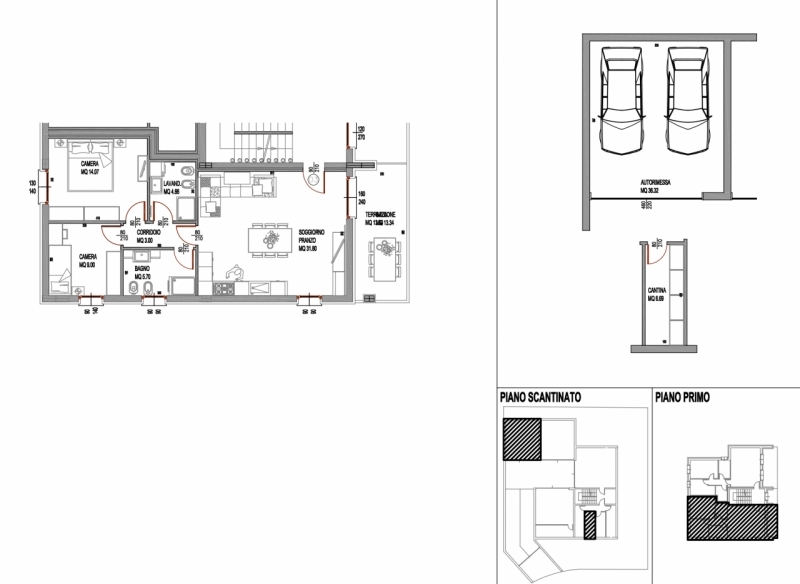
Raldon: in contesto quadrifamiliare proponiamo in vendita 4 appartamenti in una nuovissima palazzina in classe a4. l'unità si compone di:piano primo- soggiorno/cucina open space;- una camera da letto matrimoniale;- una camera da letto singola;- due servizi;- terrazzo di circa 14mq;piano interrato- cantina;- garage doppio in larghezza;la casa è dotata di serramenti in pvc con doppio vetro-camera basso-emissivi, predisposizione (vmc), riscaldamento a pavimento in pompa di calore (senza utilizzo del gas), impianto fotovoltaico da 3 kw con inverter, tapparelle motorizzate e coibentate. maggiori informazioni in agenzia.prezzo: 280.000 €classe energetica: a4.rif.: 441 / app.3